Achat appartement 104 m2 Bron (69500), 5 pièces
Demander des infos sur ce bien

Bron (69500)

Appartement 5 pièces - 104 m² Exclusivité efficity

249 900 € *

Exclusivité efficity

Equipements de cet appartement

  • 3 chambres 3 chambres
  • 2 salles de bains 2 salles de bains
  • Ascenseur Ascenseur
  • Balcon de <br />10 m² Balcon de
    10 m²
  • 1 garage 1 garage
  • 1 stationnement extérieur 1 stationnement extérieur

Présentation de cet appartement

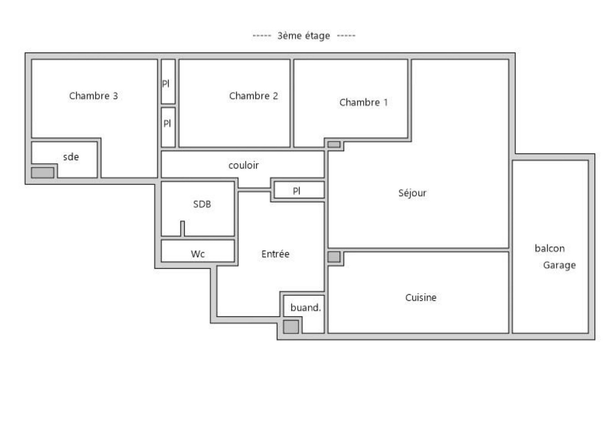
69500 – BRON – APPARTEMENT T4/T5 – 3 CHAMBRES – BALCON – LUMINEUX – AU CALME – GARAGE – CAVE – STATIONNEMENT – ASCENSEUR

Loïc FERNANDEZ et Efficity, sont ravis de vous présenter ce magnifique appartement T4, offrant une surface de 104m2 avec un balcon, situé à deux pas des commodités et des transports en commun, dans la commune de Bron.

Ce superbe appartement se trouve au 1 rue Helene Boucher, au sein d’une copropriété calme et bien entretenu au 3ème étage sur 5 avec ascenseur, offrant u…

69500 – BRON – APPARTEMENT T4/T5 – 3 CHAMBRES – BALCON – LUMINEUX – AU CALME – GARAGE – CAVE – STATIONNEMENT – ASCENSEUR

Loïc FERNANDEZ et Efficity, sont ravis de vous présenter ce magnifique appartement T4, offrant une surface de 104m2 avec un balcon, situé à deux pas des commodités et des transports en commun, dans la commune de Bron.

Ce superbe appartement se trouve au 1 rue Helene Boucher, au sein d’une copropriété calme et bien entretenu au 3ème étage sur 5 avec ascenseur, offrant un cadre de vie idéal pour une famille.
Dès l’entrée, un grand hall dessert la pièce de vie principale, d’une superficie de plus de 40 m² qui bénéficie de grandes baies vitrées apportant une luminosité avec accès direct au balcon.
La cuisine fermée, spacieuse et entièrement équipée vient compléter l’espace de vie.

Côté nuit, l’appartement dispose de trois chambres, dont une suite parentale avec salle d’eau privative.
Une deuxième salle de bain ainsi qu’un WC séparé complète le bien.

La configuration du salon permet également la création d’une quatrième chambre pour répondre aux besoins des familles nombreuses ou pour un espace bureau.

COTE RESIDENCE :
- Un garage en sous-sol
- 2 Places de stationnement privatif
- Cave privative
- Façade avec isolation par l’extérieur
- Chauffage gaz de ville avec chaudière récente

COTE APPARTEMENT :
- Climatisation réversible (PAC)
- Balcon de 9m2
- Huisseries PVC double vitrage
- Cuisine entièrement équipée
- Nombreux rangements

COTE FINANCE :
- DPE en C, garantissant confort thermique et économies d’énergie.
- Taxe foncière : 1514euros/an
- Charges : 481€/Trimestre (eau froide, chauffage, entretien des parties commune, fond travaux Alur, ascenseur et les espaces verts)

COTE PRATIQUE :
-A 200m de la Mosquée de Bron
-Carrefour Vaulx en Velin à 1km
-Tram T5 à 1km

Pour plus d'informations et pour organiser une visite, veuillez me contacter du LUNDI AU DIMANCHE par téléphone au 06.71.73.76.66 ou par mail [email protected].

En savoir plus sur ce logement

Les informations sur les risques auxquels ce bien est exposé sont disponibles sur le site Géorisques : http://georisques.gouv.fr

Référence: 190886
Loic Fernandez - EI - est Agent Commercial mandataire en immobilier, immatriculé au Registre Spécial des Agents Commerciaux du Tribunal de Commerce de Bourg-en-Bresse sous le n°898127121. Siège social du mandant : effiCity, 48 avenue de Villiers - 75017 PARIS - Société par Actions Simplifiée, société au capital de 132 373,05 euros, immatriculée au RCS Paris 497 617 746 et titulaire de la Carte professionnelle CPI 7501 2015 000 002 025 - CCI Paris IDF - Caisse de Garantie : GALIAN Assurances 89 rue de la Boétie 75008 Paris

*Le prix de vente est 249 900 €. Le prix de vente est affiché hors frais de notaire, d'enregistrement et de publicité foncière. Les honoraires sont à la charge du vendeur. Voir les barèmes d'honoraire d'efficity.

Localisation du logement

Bron (69500)

Caractéristiques du bien

Caractéristiques juridiques et financières

  • Taxe foncière de 1514 euros
  • Bien vendu soumis au statut de la copropriété : Oui
  • 86 lots dans la copropriété
  • Montant annuel moyen des charges de la copropriété : 1924 euros
  • Procédure en cours : Non

Caractéristiques de la propriété

  • Appartement construit en 1965
  • Ascenseur

BILAN ÉNERGÉTIQUE

A
B
C
D
E
F
G
Le bilan énergétique correspond à la note la plus faible entre la classe énergie et la classe climat.

CLASSE ÉNERGIE

A
B
C
116 kWh/m².an
D
E
F
G
Consommations énergétiques (en énergie primaire) pour le chauffage, la production d'eau chaude sanitaire et le refroidissement (Indice de mesure : kWhEP/m2.an).
Montant moyen estimé des dépenses annuelles d'énergie pour un usage standard, établi à partir des prix de l'énergie de l'année 2025 : entre 980.0 et 1390.0 €.

CLASSE CLIMAT

A
B
C
21 kgCO2/m².an
D
E
F
G
Émissions de gaz à effet de serre (GES) pour le chauffage, la production d'eau chaude sanitaire et le refroidissement (Indice de mesure : kgeqCO2/m².an).
DPE réalisé après le 01 juillet 2021

Partager :

Retrouvez cette annonce sur ...

seloger
leboncoin
le figaro
avendrealouer.fr

Ces biens pourraient également vous intéresser