Achat appartement 113 m2 Cannes (06400), 4 pièces
Demander des infos sur ce bien

Cannes (06400)

Appartement 4 pièces - 113 m²

420 000 € *


Equipements de cet appartement

  • 3 chambres 3 chambres
  • 1 salle d'eau 1 salle d'eau
  • 1 salle de bains 1 salle de bains
  • Exposition Est Exposition Est
  • Ascenseur Ascenseur
  • Cave de <br />5 m² Cave de
    5 m²
  • 4ème étage 4ème étage

Présentation de cet appartement

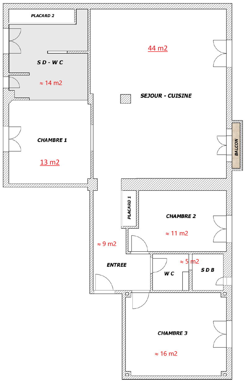
06400 CANNES - CENTRE VILLE - 4 PIÈCES - 3 CHAMBRES - 113 M² - 4ème ETAGE - VUE DÉGAGÉE – POTENTIEL T2 INDÉPENDANT

Natalia Lopes et efficity, l’agence qui estime votre bien en ligne, vous propose cet appartement de 113 m² idéalement situé à 15 mn à pied de la Croisette et à seulement 600 m de la Gare.


Cet appartement, rénové en 2024, prêt à vivre, aux volumes généreux est composé de la façon suivante :

• Un vaste séjour/cuisine de 44 m², baigné de lumière grâce à son exposition Est…

06400 CANNES - CENTRE VILLE - 4 PIÈCES - 3 CHAMBRES - 113 M² - 4ème ETAGE - VUE DÉGAGÉE – POTENTIEL T2 INDÉPENDANT

Natalia Lopes et efficity, l’agence qui estime votre bien en ligne, vous propose cet appartement de 113 m² idéalement situé à 15 mn à pied de la Croisette et à seulement 600 m de la Gare.


Cet appartement, rénové en 2024, prêt à vivre, aux volumes généreux est composé de la façon suivante :

• Un vaste séjour/cuisine de 44 m², baigné de lumière grâce à son exposition Est et sa vue dégagée
• Trois chambres confortables de 16 m², 13 m² et 11 m², dont une véritable suite parentale (avec salle de bain/douche de plus de 11 m2)
• Une salle d’eau avec WC partageant les 2 autres chambres
• Une cave offrant un précieux espace de stockage


Un atout rare : possibilité de créer un T2 indépendant idéal pour :

✔ un investissement locatif meublé ou saisonnier,
✔ accueillir un membre de la famille,
✔ installer un espace professionnel / bureau indépendant,
✔ ou encore optimiser la rentabilité globale du bien.

Ce potentiel de double usage est extrêmement recherché dans le centre de Cannes.

Ne manquez pas l'opportunité de visiter ce bien d'exception, alliant confort, luminosité et vue dégagée. 📞 Contactez-moi dès maintenant pour planifier une visite.

En savoir plus sur ce logement

Les informations sur les risques auxquels ce bien est exposé sont disponibles sur le site Géorisques : http://georisques.gouv.fr

Référence: 200997
Natalia Lopes - EI - est Agent Commercial mandataire en immobilier, immatriculé au Registre Spécial des Agents Commerciaux du Tribunal de Commerce de Montpellier sous le n°935366898. Siège social du mandant : effiCity, 48 avenue de Villiers - 75017 PARIS - Société par Actions Simplifiée, société au capital de 132 373,05 euros, immatriculée au RCS Paris 497 617 746 et titulaire de la Carte professionnelle CPI 7501 2015 000 002 025 - CCI Paris IDF - Caisse de Garantie : GALIAN Assurances 89 rue de la Boétie 75008 Paris

*Le prix de vente est 420 000 €. Le prix de vente est affiché hors frais de notaire, d'enregistrement et de publicité foncière. Les honoraires sont à la charge du vendeur. Voir les barèmes d'honoraire d'efficity.

Localisation du logement

Cannes (06400)

Caractéristiques du bien

Caractéristiques techniques

  • Type du chauffage : Collectif
  • Mode de diffusion du chauffage : Radiateur
  • Énergie du chauffage : Mixte
  • Origine de l'eau : Individuel
  • Type d'eau chaude : Ballon
  • Mode de production d'eau chaude : Electricité

Caractéristiques juridiques et financières

  • Taxe foncière de 1390 euros
  • Charges diverses annuelles : 4200 euros
  • Bien vendu soumis au statut de la copropriété : Oui
  • 36 lots dans la copropriété
  • Montant annuel moyen des charges de la copropriété : 1200 euros
  • Procédure en cours : Non

Caractéristiques de la propriété

  • Appartement construit en 1935
  • Nombre d'étages : 4
  • Façade en Crépi
  • Toit en Tuile artisanale
  • Ascenseur
  • Interphone

BILAN ÉNERGÉTIQUE

A
B
C
D
E
F
G
Le bilan énergétique correspond à la note la plus faible entre la classe énergie et la classe climat.

CLASSE ÉNERGIE

A
B
C
151 kWh/m².an
D
E
F
G
Consommations énergétiques (en énergie primaire) pour le chauffage, la production d'eau chaude sanitaire et le refroidissement (Indice de mesure : kWhEP/m2.an).
Montant moyen estimé des dépenses annuelles d'énergie pour un usage standard, établi à partir des prix de l'énergie de l'année 2023 : entre 1420.0 et 1990.0 €.

CLASSE CLIMAT

A
B
C
24 kgCO2/m².an
D
E
F
G
Émissions de gaz à effet de serre (GES) pour le chauffage, la production d'eau chaude sanitaire et le refroidissement (Indice de mesure : kgeqCO2/m².an).
DPE réalisé après le 01 juillet 2021

Partager :

Retrouvez cette annonce sur ...

seloger
leboncoin
le figaro
avendrealouer.fr

Ces biens pourraient également vous intéresser