Achat appartement 40 m2 Castelnau-le-Lez (34170), 2 pièces
Demander des infos sur ce bien

Castelnau-Le-Lez (34170)

Appartement 2 pièces - 40 m² Exclusivité efficity

180 000 € *

Exclusivité efficity

Equipements de cet appartement

  • 1 chambre 1 chambre
  • 1 salle d'eau 1 salle d'eau
  • Exposition Sud-Est Exposition Sud-Est
  • Ascenseur Ascenseur
  • Terrasse de <br />10 m² Terrasse de
    10 m²
  • Cave de <br />4 m² Cave de
    4 m²
  • 1 stationnement intérieur 1 stationnement intérieur
  • 2ème étage 2ème étage

Présentation de cet appartement

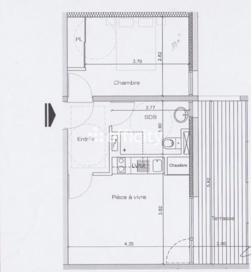
34110 CASTELNAU LE LEZ - LE PONT - T2 CALME ET LUMINEUX AVEC TERRASSE SUD EST CAVE ET PARKING INTERIEUR AU DEUXIEME ET DERNIER ETAGE D'UNE RESIDENCE RECENTE A DEUX PAS DU CENTRE - Adel NAFA et Efficity l'agence qui estime votre bien en ligne vous propose cet appartement deux pièces de 36 m2 Loi Carrez situé route de la Pompignane.

Il se compose d'une entrée, d'un séjour donnant sur une terrasse de 10m2 orientée Sud Est, un coin cuisine ouvert sur le séjour, une salle d'eau avec fenêtre et wc…

34110 CASTELNAU LE LEZ - LE PONT - T2 CALME ET LUMINEUX AVEC TERRASSE SUD EST CAVE ET PARKING INTERIEUR AU DEUXIEME ET DERNIER ETAGE D'UNE RESIDENCE RECENTE A DEUX PAS DU CENTRE - Adel NAFA et Efficity l'agence qui estime votre bien en ligne vous propose cet appartement deux pièces de 36 m2 Loi Carrez situé route de la Pompignane.

Il se compose d'une entrée, d'un séjour donnant sur une terrasse de 10m2 orientée Sud Est, un coin cuisine ouvert sur le séjour, une salle d'eau avec fenêtre et wc, d'une grand chambre avec placard.

Une cave et une place de parking sécurisée en sous-sol complète ces prestations.

Les charges sont de 83 euros.
La taxe foncière est de 1056 euros.

En savoir plus sur ce logement

Les informations sur les risques auxquels ce bien est exposé sont disponibles sur le site Géorisques : http://georisques.gouv.fr

Référence: 173600
Gaëlle FOISSAC - EI - est Agent Commercial mandataire en immobilier, immatriculé au Registre Spécial des Agents Commerciaux du Tribunal de Commerce de Montpellier sous le n°498371301. Siège social du mandant : effiCity, 48 avenue de Villiers - 75017 PARIS - Société par Actions Simplifiée, société au capital de 132 373,05 euros, immatriculée au RCS Paris 497 617 746 et titulaire de la Carte professionnelle CPI 7501 2015 000 002 025 - CCI Paris IDF - Caisse de Garantie : GALIAN Assurances 89 rue de la Boétie 75008 Paris

*Le prix de vente est 180 000 €. Le prix de vente est affiché hors frais de notaire, d'enregistrement et de publicité foncière. Les honoraires sont à la charge du vendeur. Voir les barèmes d'honoraire d'efficity.

Localisation du logement

Castelnau-Le-Lez (34170)

Caractéristiques du bien

Caractéristiques techniques

  • Type du chauffage : Individuel
  • Mode de diffusion du chauffage : Radiateur
  • Énergie du chauffage : Gaz
  • Origine de l'eau : Collectif
  • Type d'eau chaude : Panneaux solaires
  • Mode de production d'eau chaude : Solaire

Caractéristiques juridiques et financières

  • Taxe foncière de 1056 euros
  • Charges diverses annuelles : 996 euros
  • Bien vendu soumis au statut de la copropriété : Oui
  • 60 lots dans la copropriété
  • Montant annuel moyen des charges de la copropriété : 1000 euros
  • Procédure en cours : Non

Caractéristiques de la propriété

  • Appartement construit en 2013
  • Nombre d'étages : 2
  • Façade en Béton
  • Toit en Toiture terrasse
  • Ascenseur

BILAN ÉNERGÉTIQUE

A
B
C
D
E
F
G
Le bilan énergétique correspond à la note la plus faible entre la classe énergie et la classe climat.

CLASSE ÉNERGIE

A
B
80 kWh/m².an
C
D
E
F
G
Consommations énergétiques (en énergie primaire) pour le chauffage, la production d'eau chaude sanitaire et le refroidissement (Indice de mesure : kWhEP/m2.an).
Montant moyen estimé des dépenses annuelles d'énergie pour un usage standard, établi à partir des prix de l'énergie de l'année 2023 : entre 300.0 et 500.0 €.

CLASSE CLIMAT

A
5 kgCO2/m².an
B
C
D
E
F
G
Émissions de gaz à effet de serre (GES) pour le chauffage, la production d'eau chaude sanitaire et le refroidissement (Indice de mesure : kgeqCO2/m².an).
DPE réalisé après le 01 juillet 2021

Partager :

Retrouvez cette annonce sur ...

seloger
leboncoin
le figaro
avendrealouer.fr

Ces biens pourraient également vous intéresser