Achat appartement 58 m2 Strasbourg (67200), 3 pièces
Demander des infos sur ce bien

Strasbourg (67200)

Appartement 3 pièces - 59 m² Exclusivité efficity

189 000 € *

Exclusivité efficity

Equipements de cet appartement

  • 2 chambres 2 chambres
  • 1 salle de bains 1 salle de bains
  • Exposition Ouest Exposition Ouest
  • Ascenseur Ascenseur
  • Balcon de <br />9 m² Balcon de
    9 m²

Présentation de cet appartement

67200 - STRASBOURG KOENIGSHOFFEN - QUARTIER CALME - 3 PIÈCES - 2 CHAMBRES - APPARTEMENT RECENT - 58.62 M² AVEC TERRASSE AU CALME À L'ARRIÈRE -

Aude Secci effiCity, l’agence qui estime votre bien , vous propose ce charmant appartement lumineux aux portes d'Eckbolsheim.

A deux pas des tram et arrêt de bus ainsi que des commerces et écoles, vous trouverez ce bien situé au 1er étage avec ascenseur dans une copropriété récente construite en 2020.

Il saura vous séduire par sa modernité et sa…

67200 - STRASBOURG KOENIGSHOFFEN - QUARTIER CALME - 3 PIÈCES - 2 CHAMBRES - APPARTEMENT RECENT - 58.62 M² AVEC TERRASSE AU CALME À L'ARRIÈRE -

Aude Secci effiCity, l’agence qui estime votre bien , vous propose ce charmant appartement lumineux aux portes d'Eckbolsheim.

A deux pas des tram et arrêt de bus ainsi que des commerces et écoles, vous trouverez ce bien situé au 1er étage avec ascenseur dans une copropriété récente construite en 2020.

Il saura vous séduire par sa modernité et sa luminosité ainsi que par sa terrasse située au calme à l'arrière, vous offrant un espace extérieur privilégié pour profiter de moments de détente en toute tranquillité.

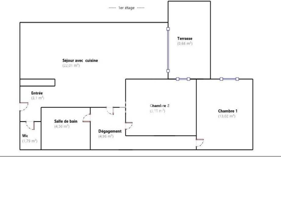
L'appartement comprend :

- une entrée aménagée avec placard,
- une cuisine entièrement équipée et fonctionnelle ouverte sur un séjour de 22m²,
- une terrasse de 9,66m² orientée ouest,
- un WC séparé,
- une salle de bain avec espace lave linge
- 2 chambres de 9 et 13m²


Chauffage collectif au gaz
Taxe foncière : 1019 €


Ne manquez pas cette opportunité de devenir propriétaire de ce bien d'exception à Strasbourg.
Contactez-moi dès maintenant pour organiser une visite;

En savoir plus sur ce logement

Les informations sur les risques auxquels ce bien est exposé sont disponibles sur le site Géorisques : http://georisques.gouv.fr

Référence: 192505
Aude Secci - EI - est Agent Commercial mandataire en immobilier, immatriculé au Registre Spécial des Agents Commerciaux du Tribunal de Commerce de Saverne sous le n°895023216. Siège social du mandant : effiCity, 48 avenue de Villiers - 75017 PARIS - Société par Actions Simplifiée, société au capital de 132 373,05 euros, immatriculée au RCS Paris 497 617 746 et titulaire de la Carte professionnelle CPI 7501 2015 000 002 025 - CCI Paris IDF - Caisse de Garantie : GALIAN Assurances 89 rue de la Boétie 75008 Paris

*Le prix de vente est 189 000 € (Honoraire Agence Inclus correspondant à 5,0% TTC du prix de vente). Le prix de vente est affiché hors frais de notaire, d'enregistrement et de publicité foncière. Les honoraires sont à la charge de l'acquéreur et sont déjà inclus dans le prix de vente affiché. Voici le prix de vente hors honoraires : 180 000 €. Voir les barèmes d'honoraire d'efficity.

Localisation du logement

Strasbourg (67200)

Caractéristiques du bien

Caractéristiques techniques

  • Type du chauffage : Collectif
  • Mode de diffusion du chauffage : Radiateur
  • Énergie du chauffage : Gaz
  • Origine de l'eau : Collectif
  • Type d'eau chaude : Chaudière
  • Mode de production d'eau chaude : Gaz

Caractéristiques juridiques et financières

  • Taxe foncière de 1019 euros
  • Charges diverses annuelles : 720 euros
  • Bien vendu soumis au statut de la copropriété : Oui
  • 76 lots dans la copropriété
  • Montant annuel moyen des charges de la copropriété : 3000 euros
  • Procédure en cours : Non

Caractéristiques de la propriété

  • Appartement construit en 2020
  • Nombre d'étages : 4
  • Façade en Crépi
  • Toit en Toiture terrasse
  • Ascenseur

BILAN ÉNERGÉTIQUE

A
B
C
D
E
F
G
Le bilan énergétique correspond à la note la plus faible entre la classe énergie et la classe climat.

CLASSE ÉNERGIE

A
B
84 kWh/m².an
C
D
E
F
G
Consommations énergétiques (en énergie primaire) pour le chauffage, la production d'eau chaude sanitaire et le refroidissement (Indice de mesure : kWhEP/m2.an).
Montant moyen estimé des dépenses annuelles d'énergie pour un usage standard, établi à partir des prix de l'énergie de l'année 2023 : entre 390.0 et 570.0 €.

CLASSE CLIMAT

A
B
C
14 kgCO2/m².an
D
E
F
G
Émissions de gaz à effet de serre (GES) pour le chauffage, la production d'eau chaude sanitaire et le refroidissement (Indice de mesure : kgeqCO2/m².an).
DPE réalisé après le 01 juillet 2021

Partager :

Retrouvez cette annonce sur ...

seloger
leboncoin
le figaro
avendrealouer.fr

Ces biens pourraient également vous intéresser