Achat appartement 62 m2 Remire-Montjoly (97354), 3 pièces
Demander des infos sur ce bien

Remire-Montjoly (97354)

Appartement 3 pièces - 62 m²

285 000 € *


Equipements de cet appartement

  • 2 chambres 2 chambres
  • 1 salle de bains 1 salle de bains
  • Exposition Est Exposition Est
  • Ascenseur Ascenseur
  • Terrasse de <br />11 m² Terrasse de
    11 m²
  • 1 stationnement extérieur 1 stationnement extérieur

Présentation de cet appartement

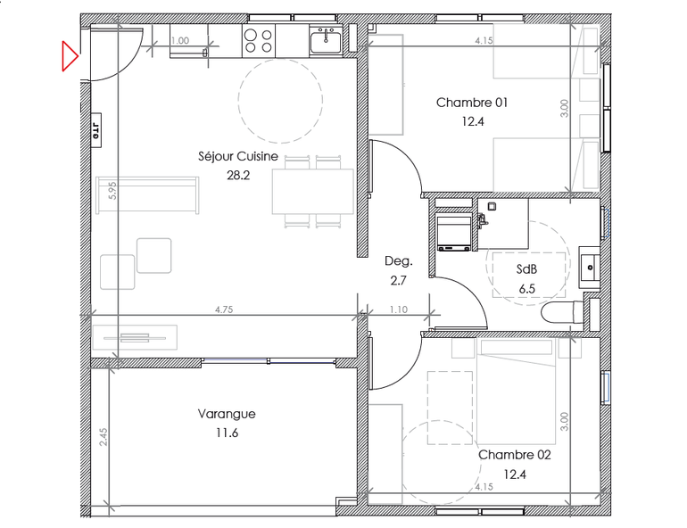
97354 RÉMIRE-MONTJOLY – T3 AVEC VARANGUE – RÉSIDENCE STANDING AVEC PISCINE – 73,80 M² UTILES + CAVE + PARKING
effiCity vous propose ce bel appartement T3 de 73,80 m² utiles, situé au 1er étage d’une résidence contemporaine de standing à Rémire-Montjoly, dans un environnement paisible et recherché.

Le bien comprend :
Un séjour/cuisine spacieux de 28,20 m²
Une chambre de 12,40 m²
Une deuxième chambre de 12,40 m²
Une salle de bains de 6,50 m²
Un dégagement de 2,70 m²
Une varangue couvert…

97354 RÉMIRE-MONTJOLY – T3 AVEC VARANGUE – RÉSIDENCE STANDING AVEC PISCINE – 73,80 M² UTILES + CAVE + PARKING
effiCity vous propose ce bel appartement T3 de 73,80 m² utiles, situé au 1er étage d’une résidence contemporaine de standing à Rémire-Montjoly, dans un environnement paisible et recherché.

Le bien comprend :
Un séjour/cuisine spacieux de 28,20 m²
Une chambre de 12,40 m²
Une deuxième chambre de 12,40 m²
Une salle de bains de 6,50 m²
Un dégagement de 2,70 m²
Une varangue couverte de 11,60 m²
Une cave privative de 4,80 m²
Une place de stationnement incluse

Les atouts de la résidence :
Résidence sécurisée avec ascenseur
Piscine, pergola, espaces verts
Locaux vélos/poussettes
Finitions en bois de Guyane et aluminium prélaqué
Chauffe-eau solaire collectif

Architecture bioclimatique
📆 Disponibilité prévisionnelle : courant 2026
🎯 Idéal pour un investissement locatif ou une résidence principale

📩 Demandez la fiche complète et les plans dès maintenant
📞 Franck Rosemain – 06 63 90 12 29

⚠️ À noter : Le montant des charges indiqué ne reflète pas la réalité.

En savoir plus sur ce logement

Les informations sur les risques auxquels ce bien est exposé sont disponibles sur le site Géorisques : http://georisques.gouv.fr

Référence: 18143702
Franck Rosemain - EI - est Agent Commercial mandataire en immobilier, immatriculé au Registre Spécial des Agents Commerciaux du Tribunal de Commerce de Chartres sous le n°918573429. Siège social du mandant : effiCity, 48 avenue de Villiers - 75017 PARIS - Société par Actions Simplifiée, société au capital de 132 373,05 euros, immatriculée au RCS Paris 497 617 746 et titulaire de la Carte professionnelle CPI 7501 2015 000 002 025 - CCI Paris IDF - Caisse de Garantie : GALIAN Assurances 89 rue de la Boétie 75008 Paris

*Le prix de vente est 285 000 €. Le prix de vente est affiché hors frais de notaire, d'enregistrement et de publicité foncière. Les honoraires sont à la charge du vendeur. Voir les barèmes d'honoraire d'efficity.

Localisation du logement

Remire-Montjoly (97354)

Caractéristiques du bien

Caractéristiques juridiques et financières

  • Bien vendu soumis au statut de la copropriété : Oui
  • 68 lots dans la copropriété
  • Montant annuel moyen des charges de la copropriété : 100 euros
  • Procédure en cours : Non

Caractéristiques de la propriété

  • Appartement construit en 2026
  • Nombre d'étages : 3
  • Ascenseur

BILAN ÉNERGÉTIQUE

Bien non soumis au DPE

Partager :

Retrouvez cette annonce sur ...

seloger
leboncoin
le figaro
avendrealouer.fr

Ces biens pourraient également vous intéresser