Achat appartement 64 m2 Marseille (13012), 3 pièces
Demander des infos sur ce bien

Marseille (13012)

Appartement 3 pièces - 64 m²

285 000 € *


Equipements de cet appartement

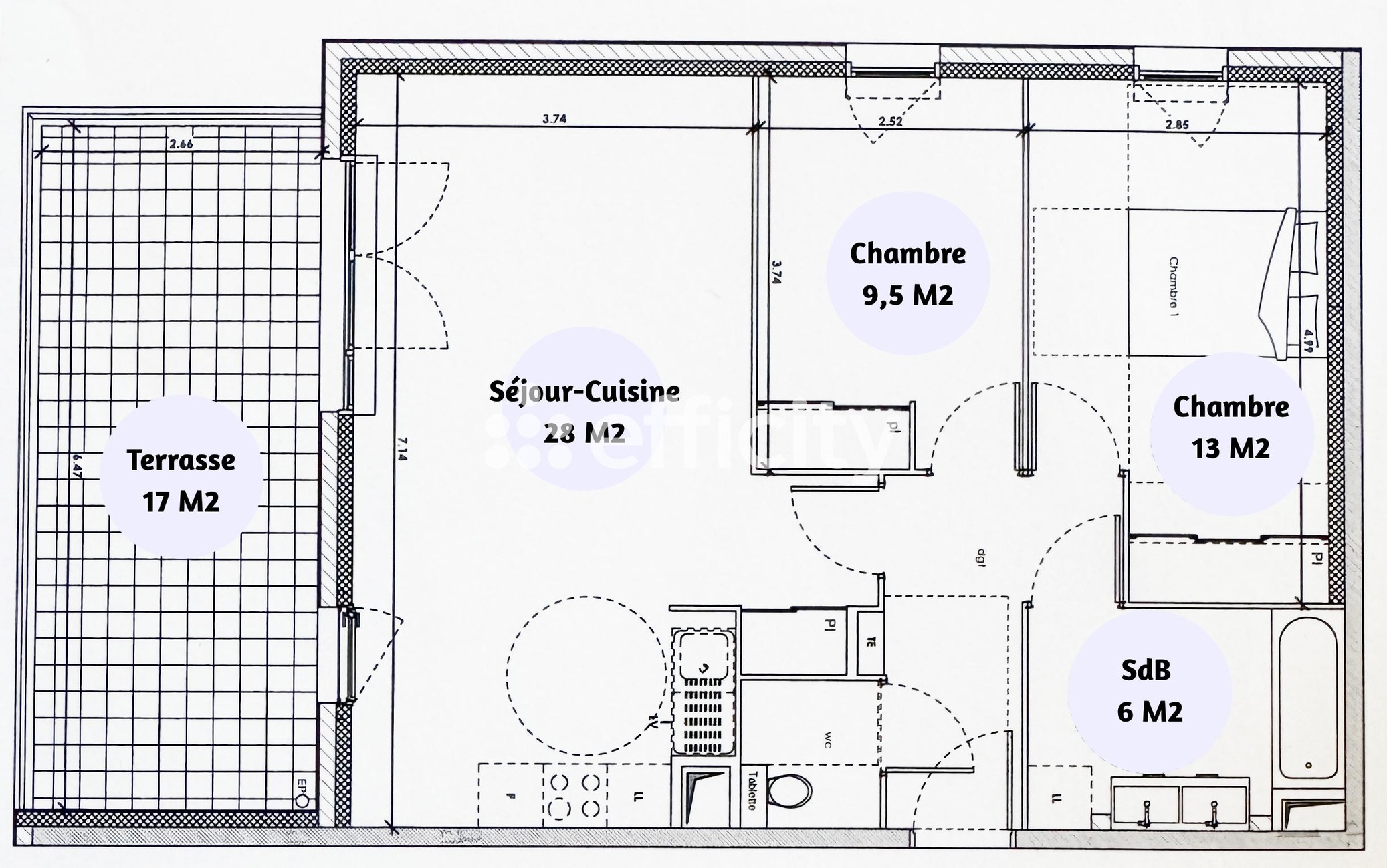
  • 2 chambres 2 chambres
  • 1 salle de bains 1 salle de bains
  • Exposition Nord-Ouest Exposition Nord-Ouest
  • Ascenseur Ascenseur
  • Terrasse de <br />17 m² Terrasse de
    17 m²
  • 1 stationnement intérieur 1 stationnement intérieur
  • 2ème étage 2ème étage

Présentation de cet appartement

Marseille 13012 – Les Olives / Les 3 Lucs - T3 - 64M2 + TERRASSE + PARKING
EffiCity, l’agence immobilière qui estime votre bien en ligne, vous propose ce très bel appartement de 3 pièces situé dans un secteur recherché, entre Les Olives et Les 3 Lucs, dans le 12e arrondissement de Marseille.
64 m² habitables parfaitement agencés, complétés par une magnifique terrasse de 17,60 m² exposée Ouest, avec vue dégagée et sans vis-à-vis.
Situé au 2e étage avec ascenseur d’une résidence moderne sous g…

Marseille 13012 – Les Olives / Les 3 Lucs - T3 - 64M2 + TERRASSE + PARKING
EffiCity, l’agence immobilière qui estime votre bien en ligne, vous propose ce très bel appartement de 3 pièces situé dans un secteur recherché, entre Les Olives et Les 3 Lucs, dans le 12e arrondissement de Marseille.
64 m² habitables parfaitement agencés, complétés par une magnifique terrasse de 17,60 m² exposée Ouest, avec vue dégagée et sans vis-à-vis.
Situé au 2e étage avec ascenseur d’une résidence moderne sous garantie décennale, ce bien offre calme, luminosité et confort, dans un environnement paisible et bien desservi.
Vous découvrirez :
• Une entrée accueillante
• Une belle pièce de vie lumineuse avec cuisine américaine ouverte totalement meublée et équipée en électroménager de marque SMEG (FOUR, PLAQUE DE CUISSON, LAVE VAISSELLE)
• Deux chambres confortables avec dressing aménagé dans chaque chambre
• Une salle de bain moderne de 6M2 pouvant accueillir un lave linge
• Des toilettes séparées aux normes PMR
• Une climatisation réversible dans le séjour pour un confort optimal toute l’année

1 PLACE DE PARKING EN SOUS-SOL INCLUSE
À proximité immédiate de la clinique Chantecler, des écoles, commerces et transports, vous profitez d’un cadre de vie pratique et qualitatif.
Copropriété de 2019 bien entretenue (4 étages), avec façade et parties communes en excellent état, construite en béton, garantissant un investissement durable et sécurisé.
Points forts : Résidence récente – Garantie décennale - Terrasse de 17,6 m² exposée Ouest - Stationnement supplémentaire en option - Climatisation réversible - Quartier recherché, calme et bien desservi
Charges de copropriété : 160 eur par mois comprenant : Eau froide, Eau chaude, Entretiens des communs, Portail, portillon, Assurance de la copro, Honoraires de syndic, Protection Incendie, VMC, Ascenseur...
Chauffage individuel : Radiateurs et climatisation réversible pour le séjour
Taxe Foncière : 1452 EUR
Pour plus d’informations Contactez moi : Roger FEVRE – Conseiller immobilier EffiCity - 06 16 91 03 23 - [email protected]

En savoir plus sur ce logement

Les informations sur les risques auxquels ce bien est exposé sont disponibles sur le site Géorisques : http://georisques.gouv.fr

Référence: 200806
Roger Fevre - EI - est Agent Commercial mandataire en immobilier, immatriculé au Registre Spécial des Agents Commerciaux du Tribunal de Commerce de Marseille sous le n°902764935. Siège social du mandant : effiCity, 48 avenue de Villiers - 75017 PARIS - Société par Actions Simplifiée, société au capital de 132 373,05 euros, immatriculée au RCS Paris 497 617 746 et titulaire de la Carte professionnelle CPI 7501 2015 000 002 025 - CCI Paris IDF - Caisse de Garantie : GALIAN Assurances 89 rue de la Boétie 75008 Paris

*Le prix de vente est 285 000 €. Le prix de vente est affiché hors frais de notaire, d'enregistrement et de publicité foncière. Les honoraires sont à la charge du vendeur. Voir les barèmes d'honoraire d'efficity.

Localisation du logement

Marseille (13012)

Caractéristiques du bien

Caractéristiques techniques

  • Type du chauffage : Individuel
  • Mode de diffusion du chauffage : Climatisation réversible
  • Énergie du chauffage : Electricité
  • Origine de l'eau : Collectif
  • Type d'eau chaude : Chaudière
  • Mode de production d'eau chaude : Gaz

Caractéristiques juridiques et financières

  • Taxe foncière de 1452 euros
  • Bien vendu soumis au statut de la copropriété : Oui
  • 54 lots dans la copropriété
  • Montant annuel moyen des charges de la copropriété : 1800 euros
  • Procédure en cours : Non

Caractéristiques de la propriété

  • Appartement construit en 2019
  • Nombre d'étages : 4
  • Façade en Béton
  • Ascenseur
  • Interphone

BILAN ÉNERGÉTIQUE

A
B
C
D
E
F
G
Le bilan énergétique correspond à la note la plus faible entre la classe énergie et la classe climat.

CLASSE ÉNERGIE

A
53 kWh/m².an
B
C
D
E
F
G
Consommations énergétiques (en énergie primaire) pour le chauffage, la production d'eau chaude sanitaire et le refroidissement (Indice de mesure : kWhEP/m2.an).
Montant moyen estimé des dépenses annuelles d'énergie pour un usage standard, établi à partir des prix de l'énergie de l'année 2021 : entre 700.0 et 1000.0 €.

CLASSE CLIMAT

A
2 kgCO2/m².an
B
C
D
E
F
G
Émissions de gaz à effet de serre (GES) pour le chauffage, la production d'eau chaude sanitaire et le refroidissement (Indice de mesure : kgeqCO2/m².an).
DPE réalisé après le 01 juillet 2021

Partager :

Retrouvez cette annonce sur ...

seloger
leboncoin
le figaro
avendrealouer.fr

Ces biens pourraient également vous intéresser