Achat appartement 65 m2 Charenton-le-Pont (94220), 3 pièces
Demander des infos sur ce bien

Charenton-Le-Pont (94220)

Appartement 3 pièces - 65 m²

410 000 € *


Equipements de cet appartement

  • 2 chambres 2 chambres
  • 1 salle d'eau 1 salle d'eau
  • Exposition Sud-Ouest Exposition Sud-Ouest
  • Ascenseur Ascenseur
  • Balcon de <br />5 m² Balcon de
    5 m²
  • Cave de <br />3 m² Cave de
    3 m²
  • 6ème étage 6ème étage

Présentation de cet appartement

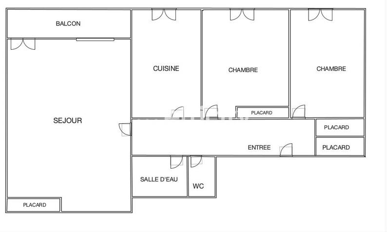
94220 - CHARENTON LE PONT - SECTEUR ARCHEVECHE - PROCHE DES COMMERCES ET DES TRANSPORTS - ETAGE ELEVE - BALCON - SANS VIS A VIS - efficity, l'agence qui estime votre bien en ligne vous présente cet appartement de 3/4 pièces de 65,04 m2 loi Carrez CALME et LUMINEUX au 6ème étage AVEC ASCENSEUR. Il se compose d'un vaste séjour de 29 m2 donnant sur un balcon de 5m2 exposé SUD OUEST, de 2 chambres, possibilité d'une 3ème chambre, d'une cuisine équipée et aménagée pouvant être ouverte sur le séjour,…

94220 - CHARENTON LE PONT - SECTEUR ARCHEVECHE - PROCHE DES COMMERCES ET DES TRANSPORTS - ETAGE ELEVE - BALCON - SANS VIS A VIS - efficity, l'agence qui estime votre bien en ligne vous présente cet appartement de 3/4 pièces de 65,04 m2 loi Carrez CALME et LUMINEUX au 6ème étage AVEC ASCENSEUR. Il se compose d'un vaste séjour de 29 m2 donnant sur un balcon de 5m2 exposé SUD OUEST, de 2 chambres, possibilité d'une 3ème chambre, d'une cuisine équipée et aménagée pouvant être ouverte sur le séjour, d'une salle d'eau et d'un WC séparé. Une CAVE complète ce bien

En savoir plus sur ce logement

Les informations sur les risques auxquels ce bien est exposé sont disponibles sur le site Géorisques : http://georisques.gouv.fr

Référence: 202817
Delphine Abisror - EI - est Agent Commercial mandataire en immobilier, immatriculé au Registre Spécial des Agents Commerciaux du Tribunal de Commerce de Créteil sous le n°793121856. Siège social du mandant : effiCity, 48 avenue de Villiers - 75017 PARIS - Société par Actions Simplifiée, société au capital de 132 373,05 euros, immatriculée au RCS Paris 497 617 746 et titulaire de la Carte professionnelle CPI 7501 2015 000 002 025 - CCI Paris IDF - Caisse de Garantie : GALIAN Assurances 89 rue de la Boétie 75008 Paris

*Le prix de vente est 410 000 €. Le prix de vente est affiché hors frais de notaire, d'enregistrement et de publicité foncière. Les honoraires sont à la charge du vendeur. Voir les barèmes d'honoraire d'efficity.

Localisation du logement

Charenton-Le-Pont (94220)

Caractéristiques du bien

Caractéristiques techniques

  • Type du chauffage : Collectif
  • Mode de diffusion du chauffage : Au sol
  • Énergie du chauffage : Gaz
  • Origine de l'eau : Collectif
  • Type d'eau chaude : Chaudière
  • Mode de production d'eau chaude : Gaz

Caractéristiques juridiques et financières

  • Taxe foncière de 1327 euros
  • Bien vendu soumis au statut de la copropriété : Oui
  • 200 lots dans la copropriété
  • Montant annuel moyen des charges de la copropriété : 2800 euros
  • Procédure en cours : Non

Caractéristiques de la propriété

  • Appartement construit en 1970
  • Nombre d'étages : 8
  • Ascenseur

BILAN ÉNERGÉTIQUE

A
B
C
D
E
F
G
Le bilan énergétique correspond à la note la plus faible entre la classe énergie et la classe climat.

CLASSE ÉNERGIE

A
B
C
D
E
263 kWh/m².an
F
G
Consommations énergétiques (en énergie primaire) pour le chauffage, la production d'eau chaude sanitaire et le refroidissement (Indice de mesure : kWhEP/m2.an).
Montant moyen estimé des dépenses annuelles d'énergie pour un usage standard, établi à partir des prix de l'énergie de l'année 2021 : entre 1400.0 et 1950.0 €.

CLASSE CLIMAT

A
B
C
D
E
57 kgCO2/m².an
F
G
Émissions de gaz à effet de serre (GES) pour le chauffage, la production d'eau chaude sanitaire et le refroidissement (Indice de mesure : kgeqCO2/m².an).
DPE réalisé après le 01 juillet 2021

Partager :

Retrouvez cette annonce sur ...

seloger
leboncoin
le figaro
avendrealouer.fr

Ces biens pourraient également vous intéresser