Achat appartement 65 m2 Ferney-Voltaire (01210), 3 pièces
Demander des infos sur ce bien

Ferney-Voltaire (01210)

Appartement 3 pièces - 65 m²

427 000 € *


Equipements de cet appartement

  • 2 chambres 2 chambres
  • 1 salle de bains 1 salle de bains
  • Exposition Est Exposition Est
  • Ascenseur Ascenseur
  • Terrasse de <br />10 m² Terrasse de
    10 m²
  • 1 garage 1 garage

Présentation de cet appartement

01210-FERNEY VOLTAIRE-T3-65m2-TERRASSE 10m2- GARAGE-FRAIS DE NOTAIRE REDUITS

Efficity, l'agence qui estime votre bien en ligne, et Pablo Caraballo Machado vous proposent à Ferney Voltaire: dans un quartier Résidentiel, ce charmant appartement au troisième étage d'une surface de 65 m2, avec une terrasse de 10 m2 qui complète cet espace pour vos repas et vos moments de détente

L'intérieur se compose de:
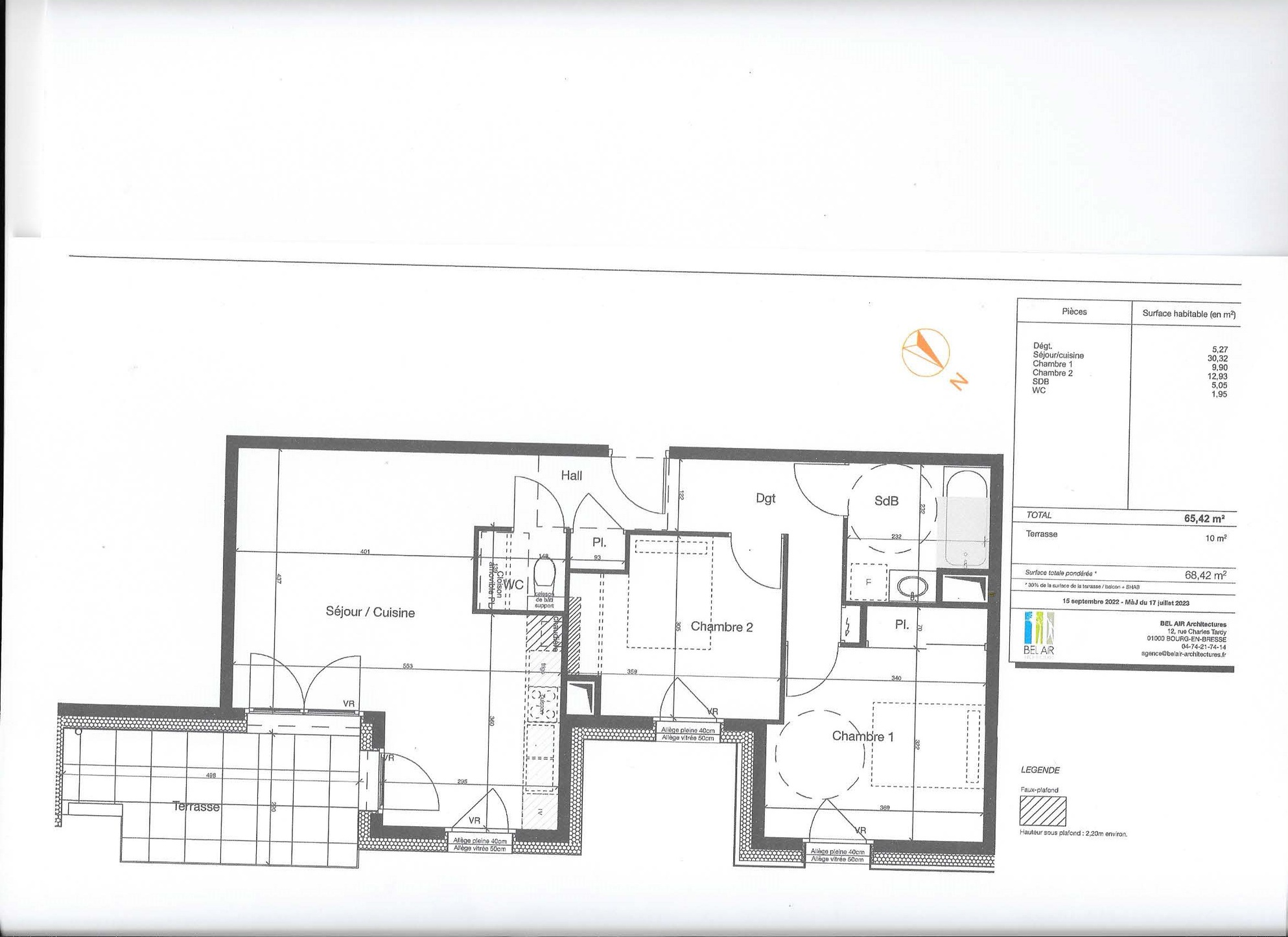
HALL: 5,27m2
SEJOUR/CUISINE :30 m2
CH1: 9,90 m2
CH2: 12,93 m2
SDB : 5,05 m2
WC : …

01210-FERNEY VOLTAIRE-T3-65m2-TERRASSE 10m2- GARAGE-FRAIS DE NOTAIRE REDUITS

Efficity, l'agence qui estime votre bien en ligne, et Pablo Caraballo Machado vous proposent à Ferney Voltaire: dans un quartier Résidentiel, ce charmant appartement au troisième étage d'une surface de 65 m2, avec une terrasse de 10 m2 qui complète cet espace pour vos repas et vos moments de détente

L'intérieur se compose de:
HALL: 5,27m2
SEJOUR/CUISINE :30 m2
CH1: 9,90 m2
CH2: 12,93 m2
SDB : 5,05 m2
WC : 2,00 m2

COTE TECHNIQUE:
Chauffage individuel au gaz par radiateurs
Sèche-serviette dans la SDB
Isolation thermique et acoustique aux normes actuelles
Fenêtre double vitrage
Volets roulant électrique
Carrelage 60/60 dans les pièces de vie et pièces d'eau
Parquet Flottant bois 14 mmm dans les CH
Fibre Optique

COTE PRATIQUE
Le Garage EST PREVU DANS LE PRIX

A PROXIMITE
Genève à 3 kms
A deux pas de l'hypercentre et toutes commodités et loisirs
Proche ecoles maternelles et primaires
Proche de la Cité Scolaire Internationale
Proche d'une de Bus Transfrontalière, la ligne Y reliant au CERN et à l'Aéroport, la ligne F reliant Genève-gare Cornavin

COTE FINANCES:
Charges de copropriété à définir
Taxe Foncière à définir
Frais de notaire réduits ( environ 3%)
Défiscalisation possible si le dispositif est maintenu.

En savoir plus sur ce logement

Les informations sur les risques auxquels ce bien est exposé sont disponibles sur le site Géorisques : http://georisques.gouv.fr

Référence: 1767051
Pablo Caraballo Machado - EI - est Agent Commercial mandataire en immobilier, immatriculé au Registre Spécial des Agents Commerciaux du Tribunal de Commerce de Annecy sous le n°901810127. Siège social du mandant : effiCity, 48 avenue de Villiers - 75017 PARIS - Société par Actions Simplifiée, société au capital de 132 373,05 euros, immatriculée au RCS Paris 497 617 746 et titulaire de la Carte professionnelle CPI 7501 2015 000 002 025 - CCI Paris IDF - Caisse de Garantie : GALIAN Assurances 89 rue de la Boétie 75008 Paris

*Le prix de vente est 427 000 €. Le prix de vente est affiché hors frais de notaire, d'enregistrement et de publicité foncière. Les honoraires sont à la charge du vendeur. Voir les barèmes d'honoraire d'efficity.

Localisation du logement

Ferney-Voltaire (01210)

Caractéristiques du bien

Caractéristiques techniques

  • Type du chauffage : Individuel
  • Mode de diffusion du chauffage : Radiateur
  • Énergie du chauffage : Gaz
  • Origine de l'eau : Individuel
  • Type d'eau chaude : Chaudière
  • Mode de production d'eau chaude : Gaz

Caractéristiques juridiques et financières

  • Bien vendu soumis au statut de la copropriété : Non

Caractéristiques de la propriété

  • Appartement construit en 2024
  • Nombre d'étages : 5
  • Façade en Crépi
  • Toit en Toiture terrasse
  • Ascenseur

BILAN ÉNERGÉTIQUE

A
B
C
D
E
F
G
Le bilan énergétique correspond à la note la plus faible entre la classe énergie et la classe climat.

CLASSE ÉNERGIE

A
B
100 kWh/m².an
C
D
E
F
G
Consommations énergétiques (en énergie primaire) pour le chauffage, la production d'eau chaude sanitaire et le refroidissement (Indice de mesure : kWhEP/m2.an).
Montant moyen estimé des dépenses annuelles d'énergie pour un usage standard, établi à partir des prix de l'énergie de l'année 2024 : entre 1100.0 et 1300.0 €.

CLASSE CLIMAT

A
B
C
12 kgCO2/m².an
D
E
F
G
Émissions de gaz à effet de serre (GES) pour le chauffage, la production d'eau chaude sanitaire et le refroidissement (Indice de mesure : kgeqCO2/m².an).
DPE réalisé après le 01 juillet 2021

Partager :

Retrouvez cette annonce sur ...

seloger
leboncoin
le figaro
avendrealouer.fr

Ces biens pourraient également vous intéresser