Achat appartement 66 m2 Marseille (13012), 3 pièces
Demander des infos sur ce bien

Marseille (13012)

Appartement 3 pièces - 66 m² Exclusivité efficity

185 000 € *

Exclusivité efficity

Equipements de cet appartement

  • 2 chambres 2 chambres
  • 1 salle de bains 1 salle de bains
  • Exposition Sud-Est Exposition Sud-Est
  • Ascenseur Ascenseur
  • Balcon de <br />5 m² Balcon de
    5 m²
  • Cave de <br />5 m² Cave de
    5 m²

Présentation de cet appartement

13 012 MARSEILLE - T3 DE 66M2 - A RENOVER - CALME - EXTERIEUR VUE JARDIN - CAVE - RESIDENCE SECURISEE.

Efficity, l'agence qui estime votre bien en ligne vous propose cet appartement au sein d'une copropriété bien entretenue et sécurisée, a proximité de tout commerce, des bus et des axes autoroutiers.
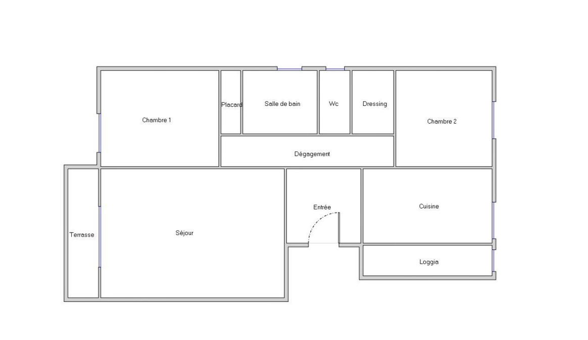
D'une superficie de 65,68m² loi carrez, se bien se compose d'un hall d'entrée, d'une cuisine avec cellier, d'un séjour lumineux ouvrant sur un balcon, de 2 chambres (dont une avec placard), d…

13 012 MARSEILLE - T3 DE 66M2 - A RENOVER - CALME - EXTERIEUR VUE JARDIN - CAVE - RESIDENCE SECURISEE.

Efficity, l'agence qui estime votre bien en ligne vous propose cet appartement au sein d'une copropriété bien entretenue et sécurisée, a proximité de tout commerce, des bus et des axes autoroutiers.
D'une superficie de 65,68m² loi carrez, se bien se compose d'un hall d'entrée, d'une cuisine avec cellier, d'un séjour lumineux ouvrant sur un balcon, de 2 chambres (dont une avec placard), d'un dressing, d'une salle de bains et de toilettes séparées.

Une cave, la vue sur le jardin pour le salon et la chambre principale et le calme complètent et valorisent ce bien.

Taxe foncière : 1.389€
Charges mensuelles de copro : 129€ (eau froide + eau chaude)

Pour tout renseignement et visite : Sylvie PASQUIER 07.68.40.14.08

En savoir plus sur ce logement

Les informations sur les risques auxquels ce bien est exposé sont disponibles sur le site Géorisques : http://georisques.gouv.fr

Référence: 188670
Sylvie Pasquier - EI - est Agent Commercial mandataire en immobilier, immatriculé au Registre Spécial des Agents Commerciaux du Tribunal de Commerce de Aix-En-Provence sous le n°878212307. Siège social du mandant : effiCity, 48 avenue de Villiers - 75017 PARIS - Société par Actions Simplifiée, société au capital de 132 373,05 euros, immatriculée au RCS Paris 497 617 746 et titulaire de la Carte professionnelle CPI 7501 2015 000 002 025 - CCI Paris IDF - Caisse de Garantie : GALIAN Assurances 89 rue de la Boétie 75008 Paris

*Le prix de vente est 185 000 € (Honoraire Agence Inclus correspondant à 5,71% TTC du prix de vente). Le prix de vente est affiché hors frais de notaire, d'enregistrement et de publicité foncière. Les honoraires sont à la charge de l'acquéreur et sont déjà inclus dans le prix de vente affiché. Voici le prix de vente hors honoraires : 175 000 €. Voir les barèmes d'honoraire d'efficity.

Localisation du logement

Marseille (13012)

Caractéristiques du bien

Caractéristiques techniques

  • Type du chauffage : Individuel
  • Mode de diffusion du chauffage : Convecteur
  • Énergie du chauffage : Electricité
  • Origine de l'eau : Collectif
  • Type d'eau chaude : Chaudière
  • Mode de production d'eau chaude : Electricité

Caractéristiques juridiques et financières

  • Taxe foncière de 1389 euros
  • Bien vendu soumis au statut de la copropriété : Oui
  • 80 lots dans la copropriété
  • Montant annuel moyen des charges de la copropriété : 1668 euros
  • Procédure en cours : Non

Caractéristiques de la propriété

  • Appartement construit en 1975
  • Nombre d'étages : 6
  • Façade en Peinture
  • Toit en Toiture terrasse
  • Ascenseur

BILAN ÉNERGÉTIQUE

A
B
C
D
E
F
G
Le bilan énergétique correspond à la note la plus faible entre la classe énergie et la classe climat.

CLASSE ÉNERGIE

A
B
C
D
E
319 kWh/m².an
F
G
Consommations énergétiques (en énergie primaire) pour le chauffage, la production d'eau chaude sanitaire et le refroidissement (Indice de mesure : kWhEP/m2.an).
Montant moyen estimé des dépenses annuelles d'énergie pour un usage standard, établi à partir des prix de l'énergie de l'année 2022 : entre 1630.0 et 2250.0 €.

CLASSE CLIMAT

A
B
10 kgCO2/m².an
C
D
E
F
G
Émissions de gaz à effet de serre (GES) pour le chauffage, la production d'eau chaude sanitaire et le refroidissement (Indice de mesure : kgeqCO2/m².an).
DPE réalisé après le 01 juillet 2021

Partager :

Retrouvez cette annonce sur ...

seloger
leboncoin
le figaro
avendrealouer.fr

Ces biens pourraient également vous intéresser