Achat appartement 68 m2 Marseille (13010), 4 pièces
Demander des infos sur ce bien

Marseille (13010)

Appartement 4 pièces - 68 m² Exclusivité efficity

282 000 € *

Exclusivité efficity

Equipements de cet appartement

  • 3 chambres 3 chambres
  • 2 salles d'eau 2 salles d'eau
  • Exposition Est Exposition Est
  • Ascenseur Ascenseur
  • Terrasse de <br />20 m² Terrasse de
    20 m²
  • 1 garage 1 garage
  • 2ème étage 2ème étage

Présentation de cet appartement

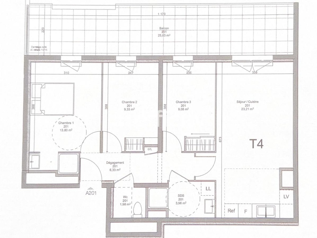
13010 - PONT DE VIVAUX - 4 PIÈCES - 3 CHAMBRES - 68 m² - APPARTEMENT FAMILIALE AVEC TERRASSE - LUMINEUX

effiCity, l’agence qui estime votre bien en ligne vous propose, ce CONFORTABLE APPARTEMENT de type 4 d’une superficie de 67,69 m2 LOI CARREZ, IDEAL FAMILLE situé au 2ème étage d’une résidence récente bien entretenue et sécurisée.

Parfaitement agencé, l’appartement, orienté EST, est composé côté nuit de TROIS BELLES CHAMBRES AVEC RANGEMENTS, dont UNE SUITE PARENTALE, d’une SECONDE SALLE …

13010 - PONT DE VIVAUX - 4 PIÈCES - 3 CHAMBRES - 68 m² - APPARTEMENT FAMILIALE AVEC TERRASSE - LUMINEUX

effiCity, l’agence qui estime votre bien en ligne vous propose, ce CONFORTABLE APPARTEMENT de type 4 d’une superficie de 67,69 m2 LOI CARREZ, IDEAL FAMILLE situé au 2ème étage d’une résidence récente bien entretenue et sécurisée.

Parfaitement agencé, l’appartement, orienté EST, est composé côté nuit de TROIS BELLES CHAMBRES AVEC RANGEMENTS, dont UNE SUITE PARENTALE, d’une SECONDE SALLE D EAU avec espace buanderie et d’un toilette suspendu indépendant avec couchette.
Côté jour, il est composé d’un CONFORTABLE SALON/SALLE A MANGER avec CUISINE EQUIPEE OUVERTE SCHIMDT.
L’ensemble des pièces de l’appartement donnent accès à une TERRASSE de 25 m2.


🌿 L’appartement présente des finitions soignées: cuisine équipée haut de gamme, nombreux rangements, salle d’eau moderne et fonctionnelle.

🔑 Les atouts à retenir :
✅ Appartement en parfait état,
✅ Vaste terrasse ombragée,
✅ Stationnement double en sous-sol,
✅ Résidence récente bien entretenue et sécurisée,
✅ Nombreux commerces et écoles accessibles à pied,
✅ Très bon DPE, classé en C,

Taxe foncière 1 946 euros

📞 Pour plus d'informations ou pour organiser une visite, contactez dès maintenant notre agent immobilier :
📱 06 84 24 76 97
📧 [email protected]

En savoir plus sur ce logement

Les informations sur les risques auxquels ce bien est exposé sont disponibles sur le site Géorisques : http://georisques.gouv.fr

Référence: 206189
Elodie Ventre - EI - est Agent Commercial mandataire en immobilier, immatriculé au Registre Spécial des Agents Commerciaux du Tribunal de Commerce de Marseille sous le n°529669590. Siège social du mandant : effiCity, 48 avenue de Villiers - 75017 PARIS - Société par Actions Simplifiée, société au capital de 132 373,05 euros, immatriculée au RCS Paris 497 617 746 et titulaire de la Carte professionnelle CPI 7501 2015 000 002 025 - CCI Paris IDF - Caisse de Garantie : GALIAN Assurances 89 rue de la Boétie 75008 Paris

*Le prix de vente est 282 000 €. Le prix de vente est affiché hors frais de notaire, d'enregistrement et de publicité foncière. Les honoraires sont à la charge du vendeur. Voir les barèmes d'honoraire d'efficity.

Localisation du logement

Marseille (13010)

Caractéristiques du bien

Caractéristiques techniques

  • Type du chauffage : Collectif
  • Mode de diffusion du chauffage : Radiateur
  • Énergie du chauffage : Gaz
  • Origine de l'eau : Collectif
  • Type d'eau chaude : Autre
  • Mode de production d'eau chaude : Gaz

Caractéristiques juridiques et financières

  • Taxe foncière de 1946 euros
  • Bien vendu soumis au statut de la copropriété : Oui
  • 20 lots dans la copropriété
  • Montant annuel moyen des charges de la copropriété : 2700 euros
  • Procédure en cours : Non

Caractéristiques de la propriété

  • Appartement construit en 2018
  • Façade en Crépi
  • Toit en Toiture terrasse
  • Ascenseur
  • Interphone

BILAN ÉNERGÉTIQUE

A
B
C
D
E
F
G
Le bilan énergétique correspond à la note la plus faible entre la classe énergie et la classe climat.

CLASSE ÉNERGIE

A
B
C
115 kWh/m².an
D
E
F
G
Consommations énergétiques (en énergie primaire) pour le chauffage, la production d'eau chaude sanitaire et le refroidissement (Indice de mesure : kWhEP/m2.an).
Montant moyen estimé des dépenses annuelles d'énergie pour un usage standard, établi à partir des prix de l'énergie de l'année 2021 : entre 550.0 et 780.0 €.

CLASSE CLIMAT

A
B
10 kgCO2/m².an
C
D
E
F
G
Émissions de gaz à effet de serre (GES) pour le chauffage, la production d'eau chaude sanitaire et le refroidissement (Indice de mesure : kgeqCO2/m².an).
DPE réalisé après le 01 juillet 2021

Partager :

Retrouvez cette annonce sur ...

seloger
leboncoin
le figaro
avendrealouer.fr

Ces biens pourraient également vous intéresser