Achat immeuble 319 m2 Guingamp (22200), 14 pièces
Demander des infos sur ce bien

Guingamp (22200)

Immeuble 14 pièces - 319 m²

397 250 € *


Equipements de cet immeuble

  • Cave de <br />37 m² Cave de
    37 m²

Présentation de cet immeuble

22200 - GUINGAMP - BRETAGNE - HYPER CENTRE - IMMEUBLE de RAPPORT 473 m²+ TERRAIN CONSTRUCTIBLE 400 m² - PERMIS DE CONSTRUIRE VALIDÉ

Efficity le leader des estimations en ligne vous propose cet immeuble situé en plein cœur de CENTRE VILLE pour PROMOTION ou INVESTISSEMENT en déficit foncier.

L’immeuble bénéficie d'une TOITURE NEUVE, d'une rénovation de charpente et la démolition a été réalisée. Il est à aménager entièrement.

Il comprend un local commercial actuellement LOUÉ avec un BAI…

22200 - GUINGAMP - BRETAGNE - HYPER CENTRE - IMMEUBLE de RAPPORT 473 m²+ TERRAIN CONSTRUCTIBLE 400 m² - PERMIS DE CONSTRUIRE VALIDÉ

Efficity le leader des estimations en ligne vous propose cet immeuble situé en plein cœur de CENTRE VILLE pour PROMOTION ou INVESTISSEMENT en déficit foncier.

L’immeuble bénéficie d'une TOITURE NEUVE, d'une rénovation de charpente et la démolition a été réalisée. Il est à aménager entièrement.

Il comprend un local commercial actuellement LOUÉ avec un BAIL COMMERCIAL ( 750 €/mois) et 6 PLATEAUX à aménager.

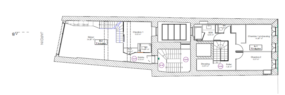
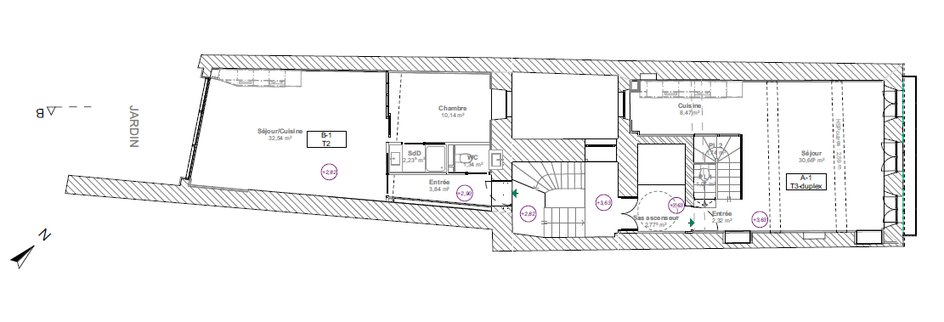
Le PERMIS de CONSTRUIRE est VALIDÉ pour 5 APPARTEMENTS de standing avec ASCENSEUR. Il est possible de réaliser deux autres lots supplémentaires.

Prévu dans le permis de construire :
Un T3 duplex 88 m2 ( peut être redivisé)
Un T4 Duplex 80 m2 (peut être redivisé)
Un T2 Duplex 53 m2
Un T2 50 m²
Un Studio 35 m²

De plus, un JARDIN PRIVATIF et CONSTRUCTIBLE de 400 m2 complète ce lot idéal pour INVESTISSEUR ou MARCHAND de BIENS.


La vente par plateau ou en VEFA serait envisageable.

En savoir plus sur ce logement

Les informations sur les risques auxquels ce bien est exposé sont disponibles sur le site Géorisques : http://georisques.gouv.fr

Référence: 174880
Jean-Bernard Gautron - EI - est Agent Commercial mandataire en immobilier, immatriculé au Registre Spécial des Agents Commerciaux du Tribunal de Commerce de Rennes sous le n°753518919. Siège social du mandant : effiCity, 48 avenue de Villiers - 75017 PARIS - Société par Actions Simplifiée, société au capital de 132 373,05 euros, immatriculée au RCS Paris 497 617 746 et titulaire de la Carte professionnelle CPI 7501 2015 000 002 025 - CCI Paris IDF - Caisse de Garantie : GALIAN Assurances 89 rue de la Boétie 75008 Paris

*Le prix de vente est 397 250 € (Honoraire Agence Inclus correspondant à 4,82% TTC du prix de vente). Le prix de vente est affiché hors frais de notaire, d'enregistrement et de publicité foncière. Les honoraires sont à la charge de l'acquéreur et sont déjà inclus dans le prix de vente affiché. Voici le prix de vente hors honoraires : 379 000 €. Voir les barèmes d'honoraire d'efficity.

Localisation du logement

Guingamp (22200)

Caractéristiques du bien

Caractéristiques techniques

  • Montant de la location : 750.0 €

Caractéristiques juridiques et financières

  • Bien vendu soumis au statut de la copropriété : Non

Caractéristiques de la propriété

  • Nombre d'étages : 3
  • Façade en Pierre
  • Toit en Ardoise

BILAN ÉNERGÉTIQUE

A
B
C
D
E
F
G
Le bilan énergétique correspond à la note la plus faible entre la classe énergie et la classe climat.

CLASSE ÉNERGIE

A
B
100 kWh/m².an
C
D
E
F
G
Consommations énergétiques (en énergie primaire) pour le chauffage, la production d'eau chaude sanitaire et le refroidissement (Indice de mesure : kWhEP/m2.an).
Montant moyen estimé des dépenses annuelles d'énergie pour un usage standard, établi à partir des prix de l'énergie de l'année 2021 : entre 7500.0 et 9700.0 €.

CLASSE CLIMAT

A
B
10 kgCO2/m².an
C
D
E
F
G
Émissions de gaz à effet de serre (GES) pour le chauffage, la production d'eau chaude sanitaire et le refroidissement (Indice de mesure : kgeqCO2/m².an).
DPE réalisé après le 01 juillet 2021

Partager :

Retrouvez cette annonce sur ...

seloger
leboncoin
le figaro
avendrealouer.fr

Ces biens pourraient également vous intéresser