Achat immeuble 528 m2 Denain (59220)
Demander des infos sur ce bien

Denain (59220)

Immeuble - 528 m²

299 000 € *


Présentation de cet immeuble

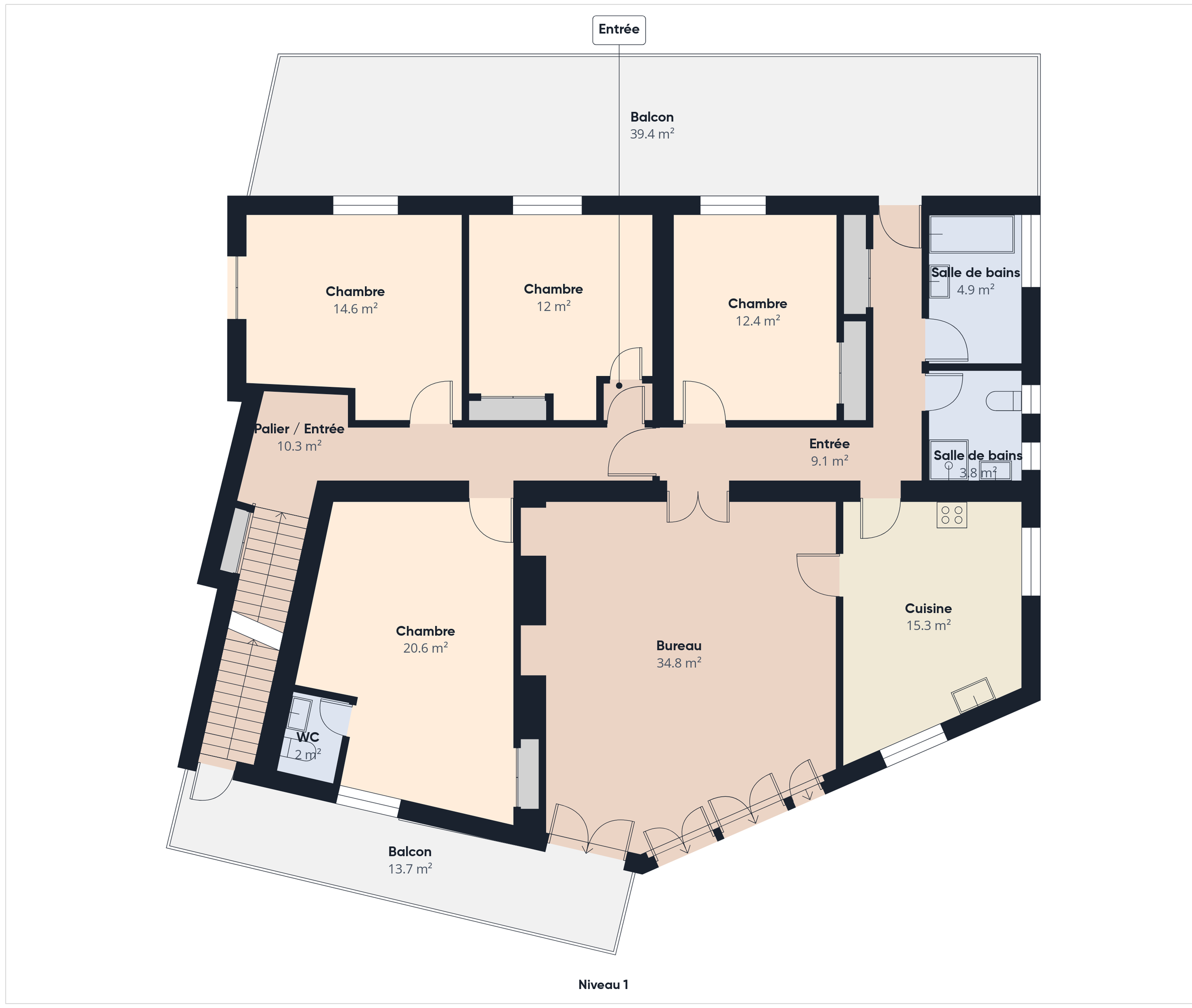
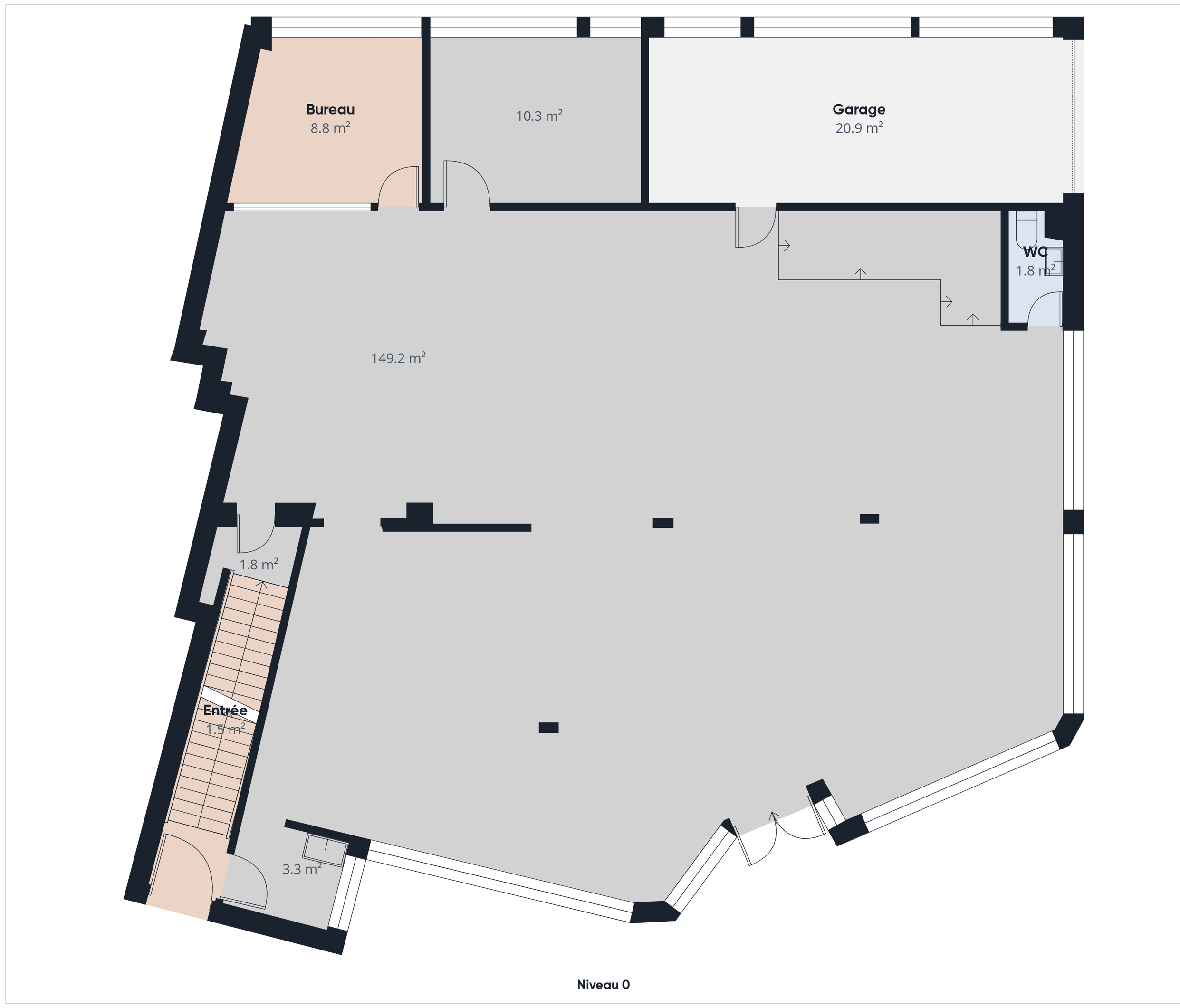
59121 HAULCHIN – LOCAL 192,5 M² + SOUS-SOL 192,5 M² – APPARTEMENT 143 M² – TOIT-TERRASSE – 528 M² EXPLOITABLES

EffiCity, l’agence qui estime votre bien en ligne, vous propose cet ensemble mixte sur axe stratégique à fort passage (10 000 véhicules/jour).

🏢 Local professionnel de 192,5 m² avec 192,5 m² de sous-sol aménageable.
🍞 Emplacement idéal pour boulangerie (toute activité artisanale), profession libérale, cabinet médical / paramédical ou showroom.
🏠 Appartement indépendant de 143 m…

59121 HAULCHIN – LOCAL 192,5 M² + SOUS-SOL 192,5 M² – APPARTEMENT 143 M² – TOIT-TERRASSE – 528 M² EXPLOITABLES

EffiCity, l’agence qui estime votre bien en ligne, vous propose cet ensemble mixte sur axe stratégique à fort passage (10 000 véhicules/jour).

🏢 Local professionnel de 192,5 m² avec 192,5 m² de sous-sol aménageable.
🍞 Emplacement idéal pour boulangerie (toute activité artisanale), profession libérale, cabinet médical / paramédical ou showroom.
🏠 Appartement indépendant de 143 m² : 4 chambres, 2 salles d’eau, balcon 50 m², rooftop 100 m².
🚘 Stationnement public devant et sur le côté + option parking.
🔧 Travaux à prévoir : menuiseries du local commercial, rafraîchissement, humidité en sous-sol.
🔑 Entrées séparées, exploitation facile en usage mixte.
📊 Surface totale exploitable : 528 m². Rentabilité brute potentielle élevée (~9%).

Opportunité rare sur le secteur. Contactez-moi dès maintenant pour visiter !
.

En savoir plus sur ce logement

Les informations sur les risques auxquels ce bien est exposé sont disponibles sur le site Géorisques : http://georisques.gouv.fr

Référence: 195469
Hugo Liot - EI - est Agent Commercial mandataire en immobilier, immatriculé au Registre Spécial des Agents Commerciaux du Tribunal de Commerce de Valenciennes sous le n°841923865. Siège social du mandant : effiCity, 48 avenue de Villiers - 75017 PARIS - Société par Actions Simplifiée, société au capital de 132 373,05 euros, immatriculée au RCS Paris 497 617 746 et titulaire de la Carte professionnelle CPI 7501 2015 000 002 025 - CCI Paris IDF - Caisse de Garantie : GALIAN Assurances 89 rue de la Boétie 75008 Paris

*Le prix de vente est 299 000 €. Le prix de vente est affiché hors frais de notaire, d'enregistrement et de publicité foncière. Les honoraires sont à la charge du vendeur. Voir les barèmes d'honoraire d'efficity.

Localisation du logement

Denain (59220)

Caractéristiques du bien

Caractéristiques juridiques et financières

  • Bien vendu soumis au statut de la copropriété : Non

BILAN ÉNERGÉTIQUE

A
B
C
D
E
F
G
Le bilan énergétique correspond à la note la plus faible entre la classe énergie et la classe climat.

CLASSE ÉNERGIE

A
B
C
D
E
264 kWh/m².an
F
G
Consommations énergétiques (en énergie primaire) pour le chauffage, la production d'eau chaude sanitaire et le refroidissement (Indice de mesure : kWhEP/m2.an).
Montant moyen estimé des dépenses annuelles d'énergie pour un usage standard, établi à partir des prix de l'énergie de l'année 2023 : entre 3250.0 et 4440.0 €.

CLASSE CLIMAT

A
B
C
D
E
58 kgCO2/m².an
F
G
Émissions de gaz à effet de serre (GES) pour le chauffage, la production d'eau chaude sanitaire et le refroidissement (Indice de mesure : kgeqCO2/m².an).
DPE réalisé après le 01 juillet 2021

Partager :

Retrouvez cette annonce sur ...

seloger
leboncoin
le figaro
avendrealouer.fr

Ces biens pourraient également vous intéresser