Achat maison 111 m2 Marseille (13004), 6 pièces
Demander des infos sur ce bien

Marseille (13004)

Maison 6 pièces - 111 m²

459 000 € *

Visite Visite visite virtuelle du bien

Equipements de cette maison

  • 5 chambres 5 chambres
  • 2 salles d'eau 2 salles d'eau
  • 1 salle de bains 1 salle de bains
  • Terrasse de <br />58 m² Terrasse de
    58 m²
  • Cave de <br />27 m² Cave de
    27 m²
  • 1 stationnement extérieur 1 stationnement extérieur

Présentation de cette maison

A vendre 13004 , Quartier des Chutes Lavie au calme absolu, Charmante maison de ville 6 pièces de 156 m² de surface total au sol , 112 m² carrez avec Terrasse, jardin et 2 caves amenageables

Rare à la vente ! Découvrez cette charmante maison de ville baignée de lumière, au calme, alliant cachet, confort et fonctionnalité, implantée sur une parcelle de 146 m².

🔹 Surface habitable : 112 m² (Loi Carrez)
🔹 Surface totale au sol : 155,86 m²

Agencement :
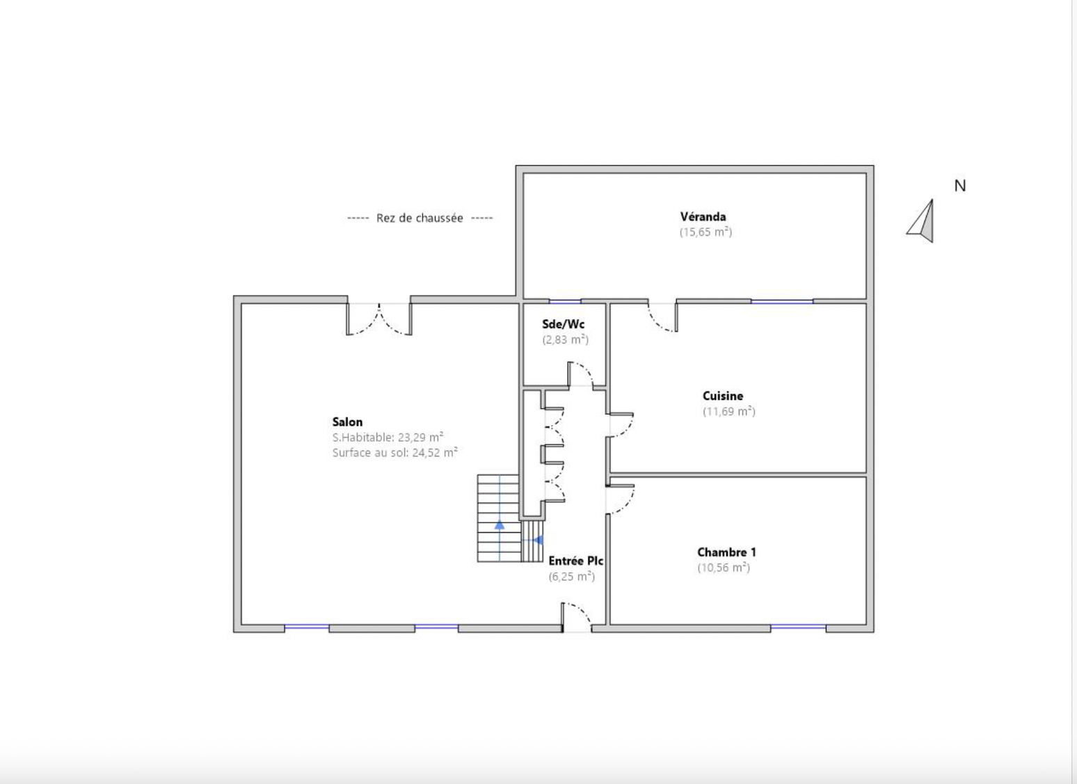
• Rez-de-chaussée :
Un vaste salo…

A vendre 13004 , Quartier des Chutes Lavie au calme absolu, Charmante maison de ville 6 pièces de 156 m² de surface total au sol , 112 m² carrez avec Terrasse, jardin et 2 caves amenageables

Rare à la vente ! Découvrez cette charmante maison de ville baignée de lumière, au calme, alliant cachet, confort et fonctionnalité, implantée sur une parcelle de 146 m².

🔹 Surface habitable : 112 m² (Loi Carrez)
🔹 Surface totale au sol : 155,86 m²

Agencement :
• Rez-de-chaussée :
Un vaste salon-séjour chaleureux avec cheminée, ouvert sur une agréable terrasse, une cuisine fermée, équipée donnant sur une véranda lumineuse de plus de 15 m², une chambre, une salle d’eau avec WC et de nombreux rangements.
• Étage :
Vous trouverez 4 chambres avec placards intégrés, une salle de bain avec baignoire, une salle d’eau supplémentaire et un WC indépendant.

Extérieurs et annexes :
• Stationnement possible pour 2 véhicules à l’intérieur de la propriété
• Deux belles caves carrelées aménageables d’environ 27 m² ( possibilité cave a vin, stockage, bureau, etc...)

👉 Atouts : idéale pour une grande famille, la maison bénéficie d’un emplacement recherché au calme absolu et à proximité immédiate des commerces, des transports en commun et des axes autoroutiers.


Contactez-nous dès maintenant pour organiser une visite et laissez-vous séduire par ce bien.
Julien Ribiollet 06 I 19 I 78 I 60 I 14

En savoir plus sur ce logement

Les informations sur les risques auxquels ce bien est exposé sont disponibles sur le site Géorisques : http://georisques.gouv.fr

Référence: 194300
Julien Ribiollet - EI - est Agent Commercial mandataire en immobilier, immatriculé au Registre Spécial des Agents Commerciaux du Tribunal de Commerce de None sous le n°888486719. Siège social du mandant : effiCity, 48 avenue de Villiers - 75017 PARIS - Société par Actions Simplifiée, société au capital de 132 373,05 euros, immatriculée au RCS Paris 497 617 746 et titulaire de la Carte professionnelle CPI 7501 2015 000 002 025 - CCI Paris IDF - Caisse de Garantie : GALIAN Assurances 89 rue de la Boétie 75008 Paris

*Le prix de vente est 459 000 €. Le prix de vente est affiché hors frais de notaire, d'enregistrement et de publicité foncière. Les honoraires sont à la charge du vendeur. Voir les barèmes d'honoraire d'efficity.

Localisation du logement

Marseille (13004)

Caractéristiques du bien

Caractéristiques juridiques et financières

  • Bien vendu soumis au statut de la copropriété : Non

BILAN ÉNERGÉTIQUE

A
B
C
D
E
F
G
Le bilan énergétique correspond à la note la plus faible entre la classe énergie et la classe climat.

CLASSE ÉNERGIE

A
B
C
D
220 kWh/m².an
E
F
G
Consommations énergétiques (en énergie primaire) pour le chauffage, la production d'eau chaude sanitaire et le refroidissement (Indice de mesure : kWhEP/m2.an).
Montant moyen estimé des dépenses annuelles d'énergie pour un usage standard, établi à partir des prix de l'énergie de l'année 2021 : entre 1480.0 et 2050.0 €.

CLASSE CLIMAT

A
B
7 kgCO2/m².an
C
D
E
F
G
Émissions de gaz à effet de serre (GES) pour le chauffage, la production d'eau chaude sanitaire et le refroidissement (Indice de mesure : kgeqCO2/m².an).
DPE réalisé après le 01 juillet 2021

Partager :

Retrouvez cette annonce sur ...

seloger
leboncoin
le figaro
avendrealouer.fr

Ces biens pourraient également vous intéresser