Achat maison 112 m2 Oullins (69600), 5 pièces
Demander des infos sur ce bien

Oullins (69600)

Maison 5 pièces - 112 m²

469 000 € *


Equipements de cette maison

  • 4 chambres 4 chambres
  • 2 salles de bains 2 salles de bains
  • Exposition Sud Exposition Sud
  • Cheminée Cheminée
  • Cave de <br />52 m² Cave de
    52 m²
  • 1 garage 1 garage

Présentation de cette maison

69600 OULLINS QUARTIER BUSSIÈRE - MAISON T5 112M²- 4 CHAMBRES - JARDIN AVEC TERRASSE - METRO 12 MIN À PIED

Yann Duranton et Efficity vous proposent cette charmante maison de charme de 112m² au sol datant des années 1920 alliant un emplacement idéal (quartier bussière proche berges de l'yzeron) , un calme absolu avec son jardin et un cadre de vie privilégié.

La maison est édifiée sur un terrain de 369m² avec son jardin et sa grande terrasse.

Au rez de chaussée vous trouverez une très be…

69600 OULLINS QUARTIER BUSSIÈRE - MAISON T5 112M²- 4 CHAMBRES - JARDIN AVEC TERRASSE - METRO 12 MIN À PIED

Yann Duranton et Efficity vous proposent cette charmante maison de charme de 112m² au sol datant des années 1920 alliant un emplacement idéal (quartier bussière proche berges de l'yzeron) , un calme absolu avec son jardin et un cadre de vie privilégié.

La maison est édifiée sur un terrain de 369m² avec son jardin et sa grande terrasse.

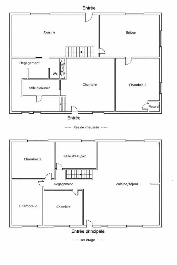
Au rez de chaussée vous trouverez une très belle pièce à vivre traversante de 30m² avec un accès direct à la terrasse et au jardin, une cuisine totalement équipée, une grande chambre de plus de 12m², un toilette séparée et une salle d'eau.
Au premier niveau vous trouverez 3 chambres ainsi qu'une salle de bains

Une grande cave en sous-sol de plus de 55m² ainsi qu'un garage complète le bien .
A noter que des travaux de remise aux goûts du jour sont à prévoir.

Son emplacement proche de toutes commodités avec l'école Jules Ferry à 3 minutes à pied, son marché le samedi matin et la station de métro B Oullins centre à 12 minutes à pied ( direction part dieu en 13 minutes) et la présence des commerces et aux pied des berges de l'yzeron font de cette maison une opportunité à saisir sur le secteur.

Pour plus d’informations, vous pouvez contacter Yann Duranton par téléphone au 06 19 76 66 82 ou email.

En savoir plus sur ce logement

Les informations sur les risques auxquels ce bien est exposé sont disponibles sur le site Géorisques : http://georisques.gouv.fr

Référence: 197300
Yann Duranton - EI - est Agent Commercial mandataire en immobilier, immatriculé au Registre Spécial des Agents Commerciaux du Tribunal de Commerce de Lyon sous le n°837595958. Siège social du mandant : effiCity, 48 avenue de Villiers - 75017 PARIS - Société par Actions Simplifiée, société au capital de 132 373,05 euros, immatriculée au RCS Paris 497 617 746 et titulaire de la Carte professionnelle CPI 7501 2015 000 002 025 - CCI Paris IDF - Caisse de Garantie : GALIAN Assurances 89 rue de la Boétie 75008 Paris

*Le prix de vente est 469 000 €. Le prix de vente est affiché hors frais de notaire, d'enregistrement et de publicité foncière. Les honoraires sont à la charge du vendeur. Voir les barèmes d'honoraire d'efficity.

Localisation du logement

Oullins (69600)

Caractéristiques du bien

Caractéristiques techniques

  • Type du chauffage : Individuel
  • Mode de diffusion du chauffage : Radiateur
  • Énergie du chauffage : Gaz
  • Origine de l'eau : Individuel
  • Type d'eau chaude : Chaudière
  • Mode de production d'eau chaude : Gaz

Caractéristiques juridiques et financières

  • Taxe foncière de 670 euros
  • Bien vendu soumis au statut de la copropriété : Non

Caractéristiques de la propriété

  • Maison construite en 1920

BILAN ÉNERGÉTIQUE

A
B
C
D
E
F
G
Le bilan énergétique correspond à la note la plus faible entre la classe énergie et la classe climat.

CLASSE ÉNERGIE

A
B
C
D
E
250 kWh/m².an
F
G
Consommations énergétiques (en énergie primaire) pour le chauffage, la production d'eau chaude sanitaire et le refroidissement (Indice de mesure : kWhEP/m2.an).
Montant moyen estimé des dépenses annuelles d'énergie pour un usage standard, établi à partir des prix de l'énergie de l'année 2024 : entre 1500.0 et 1800.0 €.

CLASSE CLIMAT

A
B
C
D
40 kgCO2/m².an
E
F
G
Émissions de gaz à effet de serre (GES) pour le chauffage, la production d'eau chaude sanitaire et le refroidissement (Indice de mesure : kgeqCO2/m².an).
DPE réalisé après le 01 juillet 2021

Partager :

Retrouvez cette annonce sur ...

seloger
leboncoin
le figaro
avendrealouer.fr

Ces biens pourraient également vous intéresser