Achat maison 115 m2 Fontenay-sous-Bois (94120), 6 pièces
Demander des infos sur ce bien

Fontenay-Sous-Bois (94120)

Maison 6 pièces - 115 m²

575 000 € *

Visite Visite visite virtuelle du bien

Equipements de cette maison

  • 4 chambres 4 chambres
  • 1 salle de bains 1 salle de bains
  • Exposition Sud Exposition Sud
  • Jardin de <br />13 m² Jardin de
    13 m²
  • Terrasse de <br />5 m² Terrasse de
    5 m²
  • Sous-sol de <br />36 m² Sous-sol de
    36 m²

Présentation de cette maison

FONTENAY-SOUS-BOIS / 94120 / QUARTIER ECO PARC DES CARRIÈRES / MAISON DE 115 M² / 3 NIVEAUX / 6 PIÈCES / 4 CHAMBRES / DOUBLE-EXPOSITION / CALME & LUMINEUX
+ COUR PRIVATIVE DE 22 M² + JARDIN DE 12 M² + TERRASSE DE 5 M²

AC | IMMO – Antonin Chauchard (Mandataire Immobilier) et effiCity vous proposent ce charmant pavillon tout proche de l’éco-parc des Carrières, situé dans un quartier calme, à proximité du centre-ville et de toutes les commodités.

Il se compose ainsi :

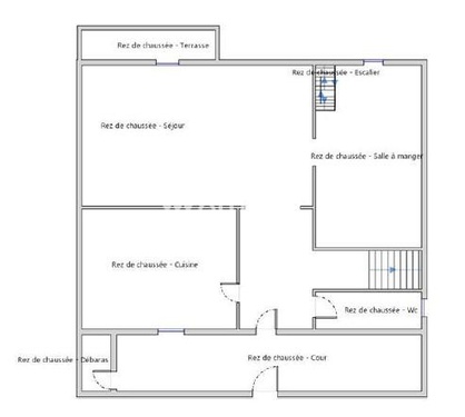
RDC

- Entrée
-…

FONTENAY-SOUS-BOIS / 94120 / QUARTIER ECO PARC DES CARRIÈRES / MAISON DE 115 M² / 3 NIVEAUX / 6 PIÈCES / 4 CHAMBRES / DOUBLE-EXPOSITION / CALME & LUMINEUX
+ COUR PRIVATIVE DE 22 M² + JARDIN DE 12 M² + TERRASSE DE 5 M²

AC | IMMO – Antonin Chauchard (Mandataire Immobilier) et effiCity vous proposent ce charmant pavillon tout proche de l’éco-parc des Carrières, situé dans un quartier calme, à proximité du centre-ville et de toutes les commodités.

Il se compose ainsi :

RDC

- Entrée
- Salon (17 m²) donnant sur terrasse (orientée sud)
- Salle à manger (13 m²)
- Cuisine séparée, aménagée et équipée avec ouverture possible sur le salon (8 m²)
- WC séparés

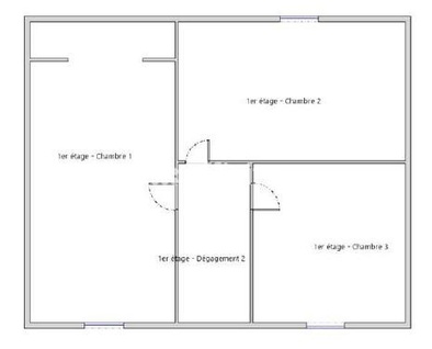
ÉTAGE 1

- 3 chambres (10,5 / 12,5 / 16,5 m²) dont 1 avec dressing (2 m²)

SOUS-SOL

- Salle de bain (avec double vasque, baignoire, douche et WC)
- Bureau pouvant servir de chambre (7,5 m²)
- Buanderie (15 m²)
- Vestiaire (6 m²)

EXTÉRIEUR

- Cour privative devant la maison (21,5 m²) + débarras (3 m²)
- Jardin (12 m²) + débarras (5 m²) >> accès depuis le rez-de-jardin
- Terrasse (5 m²)

La situation, le calme et l'emplacement proche de tous les commerces, du centre-ville et de l’éco-parc des Carrières sauront vous séduire.
Et le Bois de Vincennes n’est qu’à 5 min de vélo !
_

Chauffage par pompe à chaleur et production d’eau chaude électrique (1596 €/an)
Taxe Foncière : 1 906 €/an
_

CONTACT
Pour plus d'informations, visites, photos et plans :
Antonin CHAUCHARD

En savoir plus sur ce logement

Les informations sur les risques auxquels ce bien est exposé sont disponibles sur le site Géorisques : http://georisques.gouv.fr

Référence: 179271
Antonin Chauchard - EI - est Agent Commercial mandataire en immobilier, immatriculé au Registre Spécial des Agents Commerciaux du Tribunal de Commerce de Bobigny sous le n°921719795. Siège social du mandant : effiCity, 48 avenue de Villiers - 75017 PARIS - Société par Actions Simplifiée, société au capital de 132 373,05 euros, immatriculée au RCS Paris 497 617 746 et titulaire de la Carte professionnelle CPI 7501 2015 000 002 025 - CCI Paris IDF - Caisse de Garantie : GALIAN Assurances 89 rue de la Boétie 75008 Paris

*Le prix de vente est 575 000 €. Le prix de vente est affiché hors frais de notaire, d'enregistrement et de publicité foncière. Les honoraires sont à la charge du vendeur. Voir les barèmes d'honoraire d'efficity.

Localisation du logement

Fontenay-Sous-Bois (94120)

Caractéristiques du bien

Caractéristiques techniques

  • Type du chauffage : Individuel
  • Mode de diffusion du chauffage : Pompe à chaleur
  • Énergie du chauffage : Electricité
  • Origine de l'eau : Individuel
  • Type d'eau chaude : Ballon
  • Mode de production d'eau chaude : Electricité

Caractéristiques juridiques et financières

  • Taxe foncière de 1906 euros
  • Charges diverses annuelles : 1596 euros
  • Bien vendu soumis au statut de la copropriété : Non

Caractéristiques de la propriété

  • Maison construite en 1920
  • Façade en Crépi
  • Toit en Tuile à emboitement

BILAN ÉNERGÉTIQUE

A
B
C
D
E
F
G
Le bilan énergétique correspond à la note la plus faible entre la classe énergie et la classe climat.

CLASSE ÉNERGIE

A
B
C
D
234 kWh/m².an
E
F
G
Consommations énergétiques (en énergie primaire) pour le chauffage, la production d'eau chaude sanitaire et le refroidissement (Indice de mesure : kWhEP/m2.an).
Montant moyen estimé des dépenses annuelles d'énergie pour un usage standard, établi à partir des prix de l'énergie de l'année 2021 : entre 1630.0 et 2250.0 €.

CLASSE CLIMAT

A
B
7 kgCO2/m².an
C
D
E
F
G
Émissions de gaz à effet de serre (GES) pour le chauffage, la production d'eau chaude sanitaire et le refroidissement (Indice de mesure : kgeqCO2/m².an).
DPE réalisé après le 01 juillet 2021

Partager :

Retrouvez cette annonce sur ...

seloger
leboncoin
le figaro
avendrealouer.fr

Ces biens pourraient également vous intéresser