Achat maison 130 m2 Arcachon (33120), 7 pièces
Demander des infos sur ce bien

Arcachon (33120)

Maison 7 pièces - 130 m²

1 050 000 € *


Equipements de cette maison

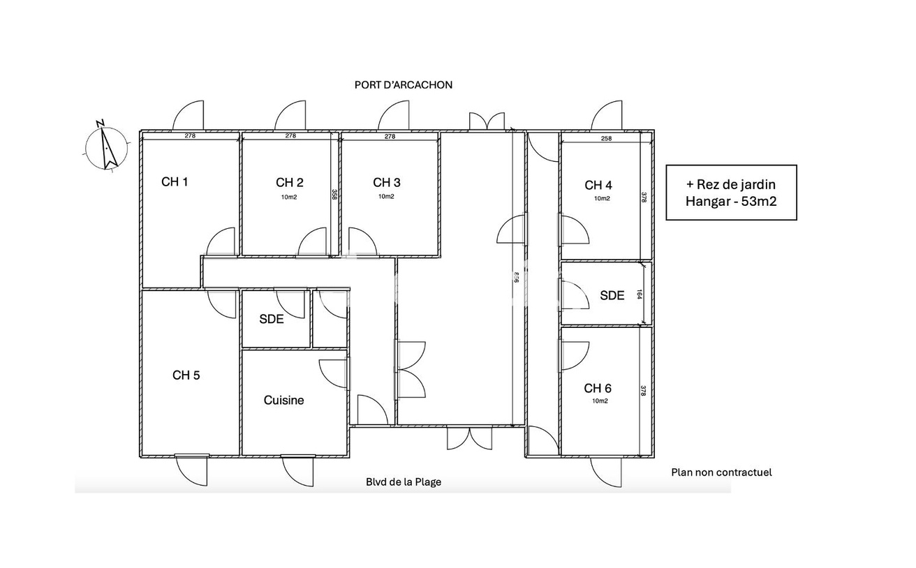
  • 6 chambres 6 chambres
  • 1 salle d'eau 1 salle d'eau
  • 1 salle de bains 1 salle de bains
  • Exposition Nord Exposition Nord
  • Vue exceptionnelle Vue exceptionnelle
  • Cheminée Cheminée
  • Jardin de <br />450 m² Jardin de
    450 m²
  • Terrasse de <br />25 m² Terrasse de
    25 m²
  • Sous-sol de <br />40 m² Sous-sol de
    40 m²
  • 1 garage 1 garage

Présentation de cette maison

33120 - ARCACHON SAINT FERDINAND - MAISON 6 CHAMBRES - 130.0 M² - PREMIERE LIGNE - SITUATION D'EXCEPTION SUR LE PORT

efficity, l’agence qui estime votre bien en ligne, vous propose cette belle opportunité aux multiples potentialités.

Que vous arriviez par le jardin d'accueil de 185 m², côté boulevard de la plage ou en passant le portillon dont le jardin de 200m² donne sur le port vous constaterez que l'environnement de la maison est idéal pour se détendre.

Avec une surface totale de …

33120 - ARCACHON SAINT FERDINAND - MAISON 6 CHAMBRES - 130.0 M² - PREMIERE LIGNE - SITUATION D'EXCEPTION SUR LE PORT

efficity, l’agence qui estime votre bien en ligne, vous propose cette belle opportunité aux multiples potentialités.

Que vous arriviez par le jardin d'accueil de 185 m², côté boulevard de la plage ou en passant le portillon dont le jardin de 200m² donne sur le port vous constaterez que l'environnement de la maison est idéal pour se détendre.

Avec une surface totale de terrain de 562.0 m², cette propriété offre un bel espace extérieur pour profiter de moments de convivialité en famille ou entre amis.

La terrasse de 25.0 m² qui surplombe le port de plaisance ainsi que les deux jardins offrent des espaces extérieurs pour profiter du beau temps en toute sérénité.
De plus, la maison dispose d'un sous-sol de 40.0 m² dédié au nautisme mais qui pourra vous offrir des possibilités d'aménagement supplémentaires selon vos besoins.
Un garage de 30m² offre un accès par le boulevard de la plage.

Cette maison de 130.0 m², construite dans les années 60, répartie sur un seul niveau de plain pied, offre un cadre de vie unique et chaleureux pour vous et votre famille.
Avec ses 6 chambres spacieuses (4 chambres vue mer et 2 chambres vue jardin) chacun pourra profiter d'un espace privé et confortable.
L'exposition traversante nord/sud garantit une luminosité optimale dans toutes les pièces, créant une atmosphère lumineuse et agréable.

Ne manquez pas cette occasion unique de voir cet emplacement d'exception. Contactez-nous dès maintenant pour organiser une visite et vous projeter.

En savoir plus sur ce logement

Les informations sur les risques auxquels ce bien est exposé sont disponibles sur le site Géorisques : http://georisques.gouv.fr

Référence: 183729
Cédric Denis - EI - est Agent Commercial mandataire en immobilier, immatriculé au Registre Spécial des Agents Commerciaux du Tribunal de Commerce de Bordeaux sous le n°508891058. Siège social du mandant : effiCity, 48 avenue de Villiers - 75017 PARIS - Société par Actions Simplifiée, société au capital de 132 373,05 euros, immatriculée au RCS Paris 497 617 746 et titulaire de la Carte professionnelle CPI 7501 2015 000 002 025 - CCI Paris IDF - Caisse de Garantie : GALIAN Assurances 89 rue de la Boétie 75008 Paris

*Le prix de vente est 1 050 000 €. Le prix de vente est affiché hors frais de notaire, d'enregistrement et de publicité foncière. Les honoraires sont à la charge du vendeur. Voir les barèmes d'honoraire d'efficity.

Localisation du logement

Arcachon (33120)

Caractéristiques du bien

Caractéristiques techniques

  • Type du chauffage : Individuel
  • Mode de diffusion du chauffage : Radiateur
  • Énergie du chauffage : Gaz
  • Origine de l'eau : Individuel
  • Type d'eau chaude : Chaudière
  • Mode de production d'eau chaude : Gaz

Caractéristiques juridiques et financières

  • Taxe foncière de 2580 euros
  • Bien vendu soumis au statut de la copropriété : Non

Caractéristiques de la propriété

  • Façade en Béton
  • Toit en Tuile à emboitement

BILAN ÉNERGÉTIQUE

A
B
C
D
E
F
G
Le bilan énergétique correspond à la note la plus faible entre la classe énergie et la classe climat.

CLASSE ÉNERGIE

A
B
C
D
E
295 kWh/m².an
F
G
Consommations énergétiques (en énergie primaire) pour le chauffage, la production d'eau chaude sanitaire et le refroidissement (Indice de mesure : kWhEP/m2.an).
Montant moyen estimé des dépenses annuelles d'énergie pour un usage standard, établi à partir des prix de l'énergie de l'année 2021 : entre 2361.0 et 3195.0 €.

CLASSE CLIMAT

A
B
C
D
E
65 kgCO2/m².an
F
G
Émissions de gaz à effet de serre (GES) pour le chauffage, la production d'eau chaude sanitaire et le refroidissement (Indice de mesure : kgeqCO2/m².an).
DPE réalisé après le 01 juillet 2021

Partager :

Retrouvez cette annonce sur ...

seloger
leboncoin
le figaro
avendrealouer.fr

Ces biens pourraient également vous intéresser