Achat maison 15 m2 Valence (26000), 1 pièce
Demander des infos sur ce bien

Valence (26000)

Maison 1 pièce - 15 m²

32 559 € *


Equipements de cette maison

  • 1 chambre 1 chambre
  • 1 salle de bains 1 salle de bains

Présentation de cette maison

EFFICITY, l'agence qui estime votre bien en ligne vous propose FAI :

Le Lodge liberté 15 M² – Le compact qui fait toute la différence

Offrez-vous un espace malin, cosy et lumineux avec le Lodge Liberté 15 M², idéal pour recevoir la famille et les amis, créer un bureau indépendant ou générer des revenus grâce à la location.

Compact mais optimisé, chaque mètre carré est pensé pour un lieu de vie fonctionnel et accueillant.

Le Lodge liberté 15 M² est un espace compact et raffiné conç…

EFFICITY, l'agence qui estime votre bien en ligne vous propose FAI :

Le Lodge liberté 15 M² – Le compact qui fait toute la différence

Offrez-vous un espace malin, cosy et lumineux avec le Lodge Liberté 15 M², idéal pour recevoir la famille et les amis, créer un bureau indépendant ou générer des revenus grâce à la location.

Compact mais optimisé, chaque mètre carré est pensé pour un lieu de vie fonctionnel et accueillant.

Le Lodge liberté 15 M² est un espace compact et raffiné conçu pour répondre à tous vos besoins :

• Bureau de télétravail inspirant,
• Atelier créatif
• Chambre indépendante pour accueillir vos amis ou proches.

Grâce à ses proportions étudiées, il trouve facilement sa place, même dans les extérieurs les plus exigus.

À noter : livrable partout en France, installation express, clé en main.

Points forts :

• Optimisation maximale de l’espace pour vivre confortablement
• Grandes ouvertures pour un intérieur lumineux
• Polyvalence : bureau, studio indépendant, chambre d’appoint ou location courte durée
• Design moderne et finitions soignées

Caractéristiques :

• Liberté 15 M² – 3 X 5 m – à partir de 32 559 €:

Autres modèles disponibles : ( Voir les photos pour plus de détails )

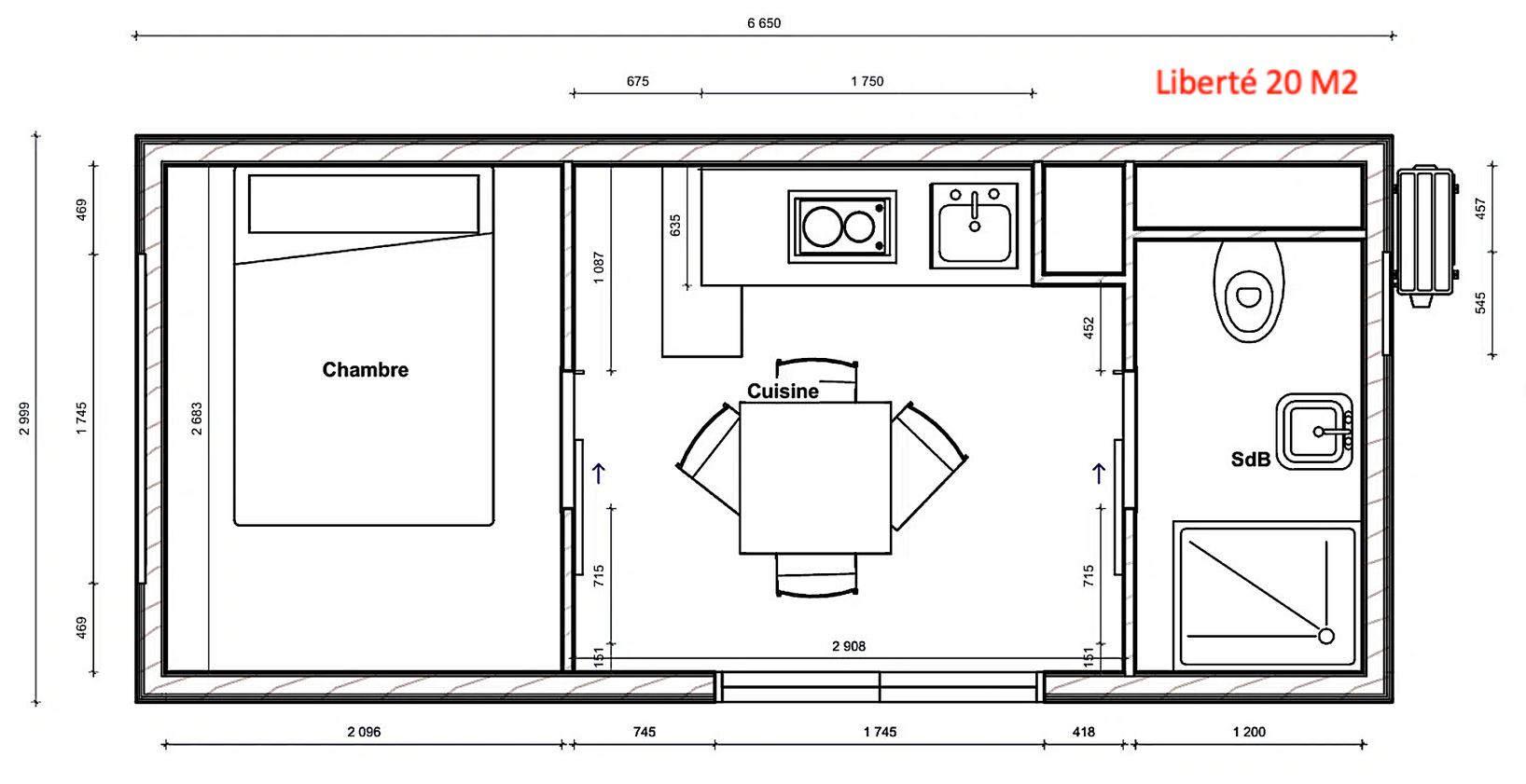
• Liberté 20 M² – 3 X 6,7 m – à partir de 40 849 €:

Avec en option une cuisine moderne, sa salle d’eau et ses sanitaires intégrés, le Liberté 20 conjugue confort et design. Son architecture soignée s’harmonise avec tous les extérieurs, créant un cocon parfait pour vos proches en quête d’indépendance. Une solution idéale aussi pour générer des revenus locatifs ou installer votre espace de travail dans un cadre inspirant.

• Liberté 30 M² – 3 X 10 m – à partir de 53 599 €:

Que vous cherchiez une résidence principale cosy ou une maison de vacances accueillante, le Lodge Liberté 30 répond à toutes vos attentes. Son agencement de plain-pied en fait également une option idéale pour les seniors, offrant un environnement sûr et facile à vivre.

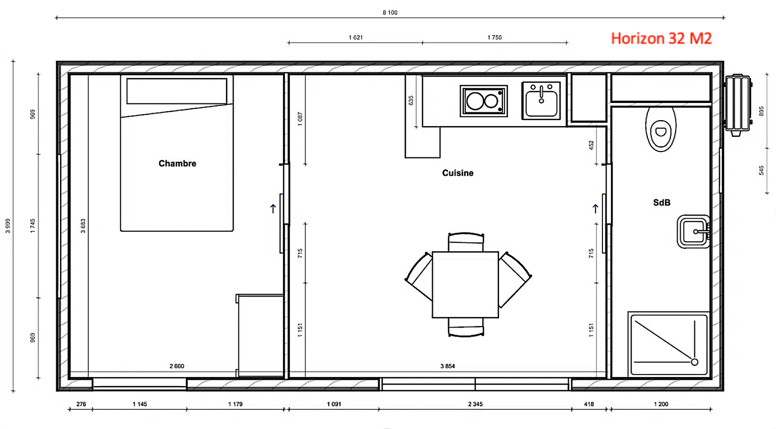
• Horizon 32 M² – 4 X 8 m – à partir de 55 229 €:

Ce lodge de 32 m² offre tout le confort nécessaire pour un usage polyvalent : résidence secondaire, bureau spacieux
ou espace de loisirs. Son design épuré et ses grandes ouvertures laissent entrer la lumière naturelle, créant une atmosphère chaleureuse en toute saison. Que ce soit pour héberger vos proches ou générer des revenus locatifs, l’Horizon 32 se distingue par sa flexibilité et sa capacité à s’adapter à tous vos besoins.

• Horizon 40 M² – 4 X 10 m – à partir de 73 630 €:

Idéal pour accueillir un couple ou un travailleur en mobilité, le Lodge s’adapte parfaitement à vos projets de location saisonnière ou annuelle. Plébiscité par nos clients pour son installation express et son aménagement tout confort, le Lodge Horizon 40 est devenu notre modèle phare, la référence incontournable de notre gamme !

• Horizon 50 M² – 4 X 12,5 m – à partir de 100 000 € :

Avec ses 50 m² optimisés, l’Horizon 50 est le modèle idéal pour ceux qui recherchent une véritable extension de leur maison. Parfait pour accueillir une petite famille ou créer un espace de travail confortable, ce Lodge allie modernité et fonctionnalité. Ses matériaux de haute qualité et son isolation performante en font un lieu de vie agréable toute l’année. Polyvalent et élégant, l’Horizon 50 s’intègre harmonieusement à tous les environnements.

Pourquoi choisir un Lodge Studio Liberté ou Horizon ?

Offrez-vous une extension moderne, confortable et clé en main sans les contraintes d’un chantier.

• 100 % personnalisable : bureau, chambre d’amis, salle de sport, atelier ou location saisonnière
• Installation rapide : livrée et posée en une journée, sans gros travaux
• Confort optimal : isolation RE2020 et matériaux durables
• Évolutive et écologique : agrandissez votre maison sans contrainte

Contactez-moi dès aujourd’hui pour découvrir l’ensemble de la gamme et définir avec moi votre projet d’installation de votre future Lodge Studio Liberté ou Horizon, de 15 à 100 M².

En savoir plus sur ce logement

Les informations sur les risques auxquels ce bien est exposé sont disponibles sur le site Géorisques : http://georisques.gouv.fr

Référence: 193260
Christophe Jourdan - EI - est Agent Commercial mandataire en immobilier, immatriculé au Registre Spécial des Agents Commerciaux du Tribunal de Commerce de Grenoble sous le n°838164390. Siège social du mandant : effiCity, 48 avenue de Villiers - 75017 PARIS - Société par Actions Simplifiée, société au capital de 132 373,05 euros, immatriculée au RCS Paris 497 617 746 et titulaire de la Carte professionnelle CPI 7501 2015 000 002 025 - CCI Paris IDF - Caisse de Garantie : GALIAN Assurances 89 rue de la Boétie 75008 Paris

*Le prix de vente est 32 559 €. Le prix de vente est affiché hors frais de notaire, d'enregistrement et de publicité foncière. Les honoraires sont à la charge du vendeur. Voir les barèmes d'honoraire d'efficity.

Localisation du logement

Valence (26000)

Caractéristiques du bien

Caractéristiques juridiques et financières

  • Bien vendu soumis au statut de la copropriété : Non

BILAN ÉNERGÉTIQUE

A
B
C
D
E
F
G
Le bilan énergétique correspond à la note la plus faible entre la classe énergie et la classe climat.

CLASSE ÉNERGIE

A
B
C
150 kWh/m².an
D
E
F
G
Consommations énergétiques (en énergie primaire) pour le chauffage, la production d'eau chaude sanitaire et le refroidissement (Indice de mesure : kWhEP/m2.an).
Montant moyen estimé des dépenses annuelles d'énergie pour un usage standard, établi à partir des prix de l'énergie de l'année 2024 : entre 1.0 et 1.0 €.

CLASSE CLIMAT

A
B
C
20 kgCO2/m².an
D
E
F
G
Émissions de gaz à effet de serre (GES) pour le chauffage, la production d'eau chaude sanitaire et le refroidissement (Indice de mesure : kgeqCO2/m².an).
DPE réalisé après le 01 juillet 2021

Partager :

Retrouvez cette annonce sur ...

seloger
leboncoin
le figaro
avendrealouer.fr

Ces biens pourraient également vous intéresser