Achat maison 150 m2 Portes-lès-Valence (26800), 9 pièces
Demander des infos sur ce bien

Portes-Lès-Valence (26800)

Maison 9 pièces - 150 m² Exclusivité efficity

378 000 € *

Exclusivité efficity

Equipements de cette maison

  • 5 chambres 5 chambres
  • 2 salles de bains 2 salles de bains
  • Terrasse de <br />50 m² Terrasse de
    50 m²
  • Cave de <br />45 m² Cave de
    45 m²
  • 2 garages 2 garages

Présentation de cette maison

PORTE-LÈS-VALENCE - MAISON - JARDIN -TERRASSE - PISCINE - 5 CHAMBRES - GARAGES - EXCLUSIVITE

Efficity et Christophe Jourdan vous présentent en exclusivité cette maison de plus de 150m2 habitable, très lumineuse, possédant 5 chambres, terrasse, jardin, piscine, cave, garage, sous-sol; le tout au calme à quelques pas des écoles et commerces.

Le rez-de-chaussée se compose d’une CUISINE, de 3 CHAMBRES chacune avec PLACARD INTÉGRÉ dont une donnant sur une première TERRASSE, d'un SALON SÉJOUR …

PORTE-LÈS-VALENCE - MAISON - JARDIN -TERRASSE - PISCINE - 5 CHAMBRES - GARAGES - EXCLUSIVITE

Efficity et Christophe Jourdan vous présentent en exclusivité cette maison de plus de 150m2 habitable, très lumineuse, possédant 5 chambres, terrasse, jardin, piscine, cave, garage, sous-sol; le tout au calme à quelques pas des écoles et commerces.

Le rez-de-chaussée se compose d’une CUISINE, de 3 CHAMBRES chacune avec PLACARD INTÉGRÉ dont une donnant sur une première TERRASSE, d'un SALON SÉJOUR accompagné de sa CHEMINÉE, d'une SALLE D'EAU, d'une SALLE DE BAIN avec toilette SÉPARÉ.

Au rez-de-chaussée nous y trouvons également une DEUXIÈME CUISINE et sa TERRASSE ou CUISINE D'ÉTÉ avec vue sur la PISCINE CREUSÉE et son ABRIS jouxtant la plus grande partie du terrain.

Un escalier menant à la partie haute vient compléter cette partie basse.

La PARTIE HAUTE quant à elle est composée de 2 CHAMBRES, d'un bureau et de combes faisant office de SALLE DE JEU.

Le CHAUFFAGE est centralisé et assuré par une chaudière au gaz de ville.

Une CLIMATISATION réversible par POMPE À CHALEUR vient également compléter la partie basse.

DOUBLE VITRAGE, VOLET ROULANT ELECTRIQUE.

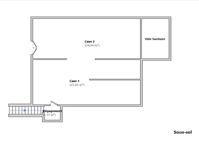
Un SOUS-SOL de 50m2, 2 GARAGES dont 1 indépendant de plus de 20m2 viennent compléter ce bien.

L'HABITATION, sa PISCINE, ses GARAGES et son POTAGÉ repose sur plus de 1100 m2 de terrain ENTIÈREMENT CLOS .

Proche TRANSPORTS, ECOLES et COMMERCES.
Cette MAISON vous intéresse, contactez rapidement Christophe Jourdan au 07 68 05 78 78

En savoir plus sur ce logement

Les informations sur les risques auxquels ce bien est exposé sont disponibles sur le site Géorisques : http://georisques.gouv.fr

Référence: 198730
Christophe Jourdan - EI - est Agent Commercial mandataire en immobilier, immatriculé au Registre Spécial des Agents Commerciaux du Tribunal de Commerce de Grenoble sous le n°838164390. Siège social du mandant : effiCity, 48 avenue de Villiers - 75017 PARIS - Société par Actions Simplifiée, société au capital de 132 373,05 euros, immatriculée au RCS Paris 497 617 746 et titulaire de la Carte professionnelle CPI 7501 2015 000 002 025 - CCI Paris IDF - Caisse de Garantie : GALIAN Assurances 89 rue de la Boétie 75008 Paris

*Le prix de vente est 378 000 €. Le prix de vente est affiché hors frais de notaire, d'enregistrement et de publicité foncière. Les honoraires sont à la charge du vendeur. Voir les barèmes d'honoraire d'efficity.

Localisation du logement

Portes-Lès-Valence (26800)

Caractéristiques du bien

Caractéristiques juridiques et financières

  • Bien vendu soumis au statut de la copropriété : Non

BILAN ÉNERGÉTIQUE

A
B
C
D
E
F
G
Le bilan énergétique correspond à la note la plus faible entre la classe énergie et la classe climat.

CLASSE ÉNERGIE

A
B
C
D
197 kWh/m².an
E
F
G
Consommations énergétiques (en énergie primaire) pour le chauffage, la production d'eau chaude sanitaire et le refroidissement (Indice de mesure : kWhEP/m2.an).
Montant moyen estimé des dépenses annuelles d'énergie pour un usage standard, établi à partir des prix de l'énergie de l'année 2021 : entre 1840.0 et 2570.0 €.

CLASSE CLIMAT

A
B
C
26 kgCO2/m².an
D
E
F
G
Émissions de gaz à effet de serre (GES) pour le chauffage, la production d'eau chaude sanitaire et le refroidissement (Indice de mesure : kgeqCO2/m².an).
DPE réalisé après le 01 juillet 2021

Partager :

Retrouvez cette annonce sur ...

seloger
leboncoin
le figaro
avendrealouer.fr

Ces biens pourraient également vous intéresser