Achat maison 152 m2 Saint-Philbert-de-Grand-Lieu (44310), 5 pièces
Demander des infos sur ce bien

Saint-Philbert-De-Grand-Lieu (44310)

Maison 5 pièces - 152 m² Bien prestige

417 000 € *

Bien prestige

Equipements de cette maison

  • 4 chambres 4 chambres
  • 2 salles d'eau 2 salles d'eau
  • 1 salle de bains 1 salle de bains
  • Exposition Sud Exposition Sud
  • Jardin de <br />120 m² Jardin de
    120 m²
  • Terrasse de <br />20 m² Terrasse de
    20 m²
  • 1 box 1 box
  • 2 stationnements extérieurs 2 stationnements extérieurs

Présentation de cette maison

Efficity vous invite à découvrir cette élégante et spacieuse maison familiale de 152 m² habitables, édifiée en 2008, idéalement située au cœur de Saint-Philbert-de-Grand-Lieu.
À seulement 25 km de Nantes et 30 minutes des plages, elle offre un cadre de vie harmonieux entre dynamisme et douceur.
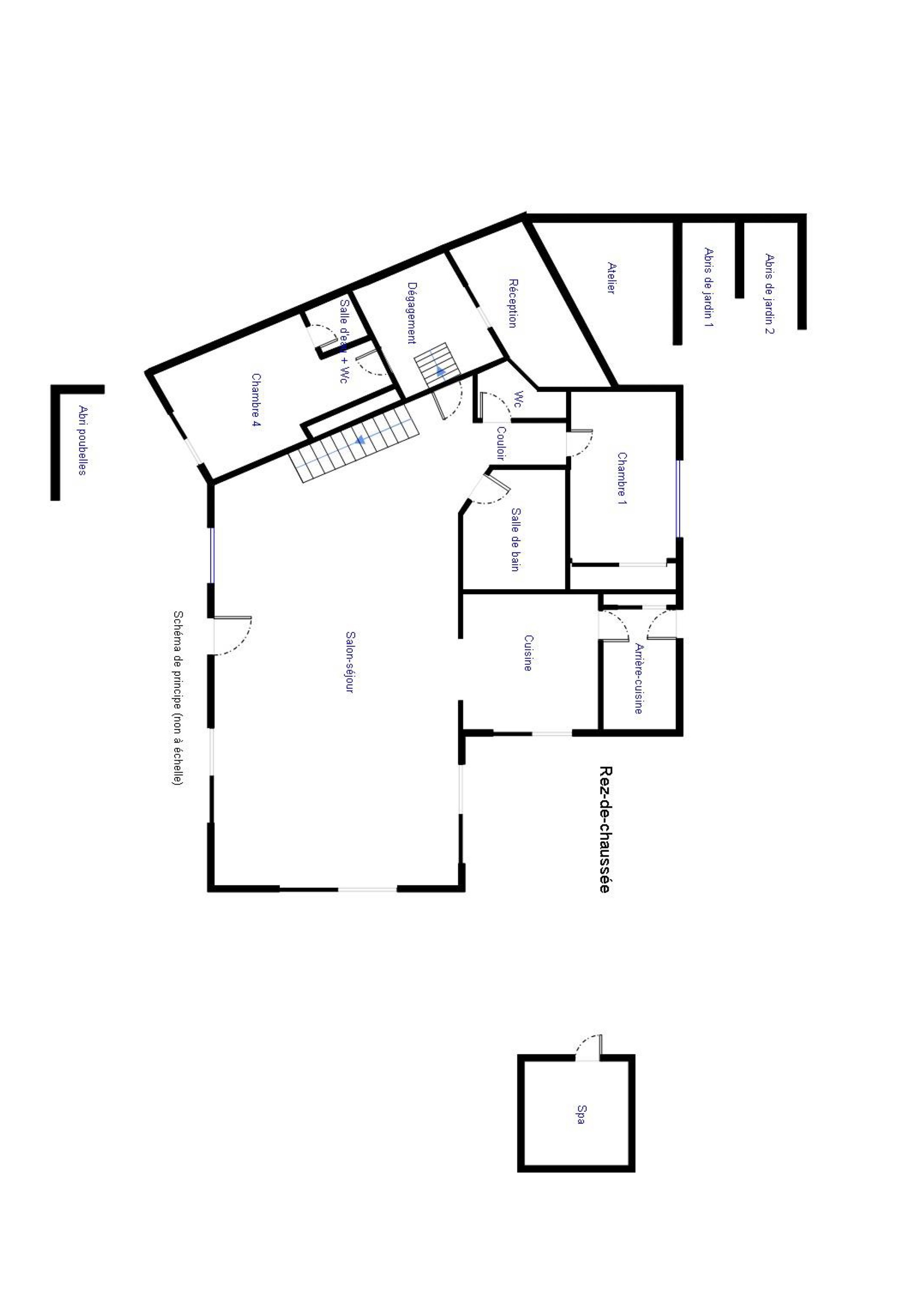
Son vaste séjour de 57 m² baigné de lumière, prolongé par une terrasse en composite de 20 m², crée un espace convivial pour recevoir famille et amis. Au rez-de-chaussée, une suite parentale, un WC indé…

Efficity vous invite à découvrir cette élégante et spacieuse maison familiale de 152 m² habitables, édifiée en 2008, idéalement située au cœur de Saint-Philbert-de-Grand-Lieu.
À seulement 25 km de Nantes et 30 minutes des plages, elle offre un cadre de vie harmonieux entre dynamisme et douceur.
Son vaste séjour de 57 m² baigné de lumière, prolongé par une terrasse en composite de 20 m², crée un espace convivial pour recevoir famille et amis. Au rez-de-chaussée, une suite parentale, un WC indépendant, une salle de bain, une cuisine moderne et fonctionnelle, ainsi que deux chambres supplémentaires à l’étage avec salle d’eau.
Pour compléter ce bien, vous trouverez au sous-sol semi-enterré une grande chambre indépendante disposant d’une grande baie et une kitchenette ouvre de multiples possibilités : studio, espace ado ou activité professionnelle.
Les extérieurs séduisent par leurs équipements : panneaux solaires, puits artésien pour l’arrosage extérieur, serre polyvalente de 15 m², et permis validé pour la construction d’un garage.
Maison clé en main, sans travaux à prévoir, prête à accueillir vos projets de vie.
Nous vous proposons également une visite virtuelle sur demande. Contactez-nous pour plus de renseignements

En savoir plus sur ce logement

Les informations sur les risques auxquels ce bien est exposé sont disponibles sur le site Géorisques : http://georisques.gouv.fr

Référence: 195654
Gérald Chaigneau - EI - est Agent Commercial mandataire en immobilier, immatriculé au Registre Spécial des Agents Commerciaux du Tribunal de Commerce de Nantes sous le n°792755282. Siège social du mandant : effiCity, 48 avenue de Villiers - 75017 PARIS - Société par Actions Simplifiée, société au capital de 132 373,05 euros, immatriculée au RCS Paris 497 617 746 et titulaire de la Carte professionnelle CPI 7501 2015 000 002 025 - CCI Paris IDF - Caisse de Garantie : GALIAN Assurances 89 rue de la Boétie 75008 Paris

*Le prix de vente est 417 000 €. Le prix de vente est affiché hors frais de notaire, d'enregistrement et de publicité foncière. Les honoraires sont à la charge du vendeur. Voir les barèmes d'honoraire d'efficity.

Localisation du logement

Saint-Philbert-De-Grand-Lieu (44310)

Caractéristiques du bien

Caractéristiques techniques

  • Type du chauffage : Individuel
  • Mode de diffusion du chauffage : Au sol
  • Origine de l'eau : Individuel
  • Type d'eau chaude : Ballon
  • Mode de production d'eau chaude : Electricité

Caractéristiques juridiques et financières

  • Bien vendu soumis au statut de la copropriété : Non

Caractéristiques de la propriété

  • Maison construite en 2008
  • Façade en Crépi
  • Toit en Tuile à emboitement

BILAN ÉNERGÉTIQUE

A
B
C
D
E
F
G
Le bilan énergétique correspond à la note la plus faible entre la classe énergie et la classe climat.

CLASSE ÉNERGIE

A
B
C
130 kWh/m².an
D
E
F
G
Consommations énergétiques (en énergie primaire) pour le chauffage, la production d'eau chaude sanitaire et le refroidissement (Indice de mesure : kWhEP/m2.an).
Montant moyen estimé des dépenses annuelles d'énergie pour un usage standard, établi à partir des prix de l'énergie de l'année 2021 : entre 1222.0 et 1800.0 €.

CLASSE CLIMAT

A
5 kgCO2/m².an
B
C
D
E
F
G
Émissions de gaz à effet de serre (GES) pour le chauffage, la production d'eau chaude sanitaire et le refroidissement (Indice de mesure : kgeqCO2/m².an).
DPE réalisé après le 01 juillet 2021

Partager :

Ces biens pourraient également vous intéresser