Achat maison 161 m2 Plouaret (22420), 6 pièces
Demander des infos sur ce bien

Plouaret (22420)

Maison 6 pièces - 161 m²

349 000 € *


Equipements de cette maison

  • 5 chambres 5 chambres
  • 1 salle d'eau 1 salle d'eau
  • 1 salle de bains 1 salle de bains
  • Exposition Sud Exposition Sud
  • Jardin de <br />17 150 m² Jardin de
    17 150 m²
  • 5 stationnements extérieurs 5 stationnements extérieurs

Présentation de cette maison

22420 - PLOUARET - PROPRIÉTÉ ÉQUESTRE - 1,7 HECTARES - LONGÈRE - 5 CHAMBRES - 166 m² UTILE -

effiCity, l’agence qui estime votre bien en ligne, vous propose cette MAISON FAMILIALE, un havre de paix en BRETAGNE à seulement quelques minutes de Plouaret,

Cette maison de 142 m² HABITABLES m² sur DEUX NIVEAUX bénéficie d'une EXPOSITION SUD offrant une luminosité naturelle tout au long de la journée.

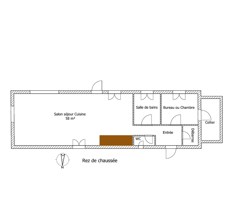
Le rez-de-chaussée se compose d'un vaste SÉJOUR de 58 m², d'une CUISINE équipée, d'une CH…

22420 - PLOUARET - PROPRIÉTÉ ÉQUESTRE - 1,7 HECTARES - LONGÈRE - 5 CHAMBRES - 166 m² UTILE -

effiCity, l’agence qui estime votre bien en ligne, vous propose cette MAISON FAMILIALE, un havre de paix en BRETAGNE à seulement quelques minutes de Plouaret,

Cette maison de 142 m² HABITABLES m² sur DEUX NIVEAUX bénéficie d'une EXPOSITION SUD offrant une luminosité naturelle tout au long de la journée.

Le rez-de-chaussée se compose d'un vaste SÉJOUR de 58 m², d'une CUISINE équipée, d'une CHAMBRE ou BUREAU, d'une SALLE DE BAINS ainsi que des WC. À l'étage, vous trouverez quatre CHAMBRES supplémentaires ainsi qu'une SALLE d' EAU avec WC, idéales pour accueillir toute la famille.

À l'extérieur, un vaste TERRAIN de 17 150 m² divisé en plusieurs PADDOCKS est idéal pour les amoureux de la nature, du JARDIN et les familles en quête d'espace ou bien pour y accueillir vos animaux ( poules, chèvres, moutons, chevaux, poneys...!)

Son grand HANGAR est parfait pour y faire votre ÉCURIE, du STOCKAGE, un ATELIER ou bien votre LOCAL d' ARTISAN.

Ses DÉPENDANCES en pierre à rénover seront propices pour y développer une activité de GITE ou bien pour de l'habitat partagé!

Quelques travaux restent à faire sur la maison et les dépendances devront être rénovées entièrement.

Ne manquez pas cette opportunité unique de devenir propriétaire de cette charmante maison sur 1,7 HA. Contactez-nous pour organiser une visite dès maintenant !

En savoir plus sur ce logement

Les informations sur les risques auxquels ce bien est exposé sont disponibles sur le site Géorisques : http://georisques.gouv.fr

Référence: 188001
Jean-Bernard Gautron - EI - est Agent Commercial mandataire en immobilier, immatriculé au Registre Spécial des Agents Commerciaux du Tribunal de Commerce de Rennes sous le n°753518919. Siège social du mandant : effiCity, 48 avenue de Villiers - 75017 PARIS - Société par Actions Simplifiée, société au capital de 132 373,05 euros, immatriculée au RCS Paris 497 617 746 et titulaire de la Carte professionnelle CPI 7501 2015 000 002 025 - CCI Paris IDF - Caisse de Garantie : GALIAN Assurances 89 rue de la Boétie 75008 Paris

*Le prix de vente est 349 000 €. Le prix de vente est affiché hors frais de notaire, d'enregistrement et de publicité foncière. Les honoraires sont à la charge du vendeur. Voir les barèmes d'honoraire d'efficity.

Localisation du logement

Plouaret (22420)

Caractéristiques du bien

Caractéristiques techniques

  • Type du chauffage : Individuel
  • Mode de diffusion du chauffage : Convecteur
  • Énergie du chauffage : Electricité
  • Origine de l'eau : Individuel
  • Type d'eau chaude : Ballon
  • Mode de production d'eau chaude : Electricité

Caractéristiques juridiques et financières

  • Taxe foncière de 1300 euros
  • Bien vendu soumis au statut de la copropriété : Non

Caractéristiques de la propriété

  • Façade en Pierre
  • Toit en Ardoise

BILAN ÉNERGÉTIQUE

A
B
C
D
E
F
G
Le bilan énergétique correspond à la note la plus faible entre la classe énergie et la classe climat.

CLASSE ÉNERGIE

A
B
C
173 kWh/m².an
D
E
F
G
Consommations énergétiques (en énergie primaire) pour le chauffage, la production d'eau chaude sanitaire et le refroidissement (Indice de mesure : kWhEP/m2.an).
Montant moyen estimé des dépenses annuelles d'énergie pour un usage standard, établi à partir des prix de l'énergie de l'année 2023 : entre 1710.0 et 2400.0 €.

CLASSE CLIMAT

A
5 kgCO2/m².an
B
C
D
E
F
G
Émissions de gaz à effet de serre (GES) pour le chauffage, la production d'eau chaude sanitaire et le refroidissement (Indice de mesure : kgeqCO2/m².an).
DPE réalisé après le 01 juillet 2021

Partager :

Retrouvez cette annonce sur ...

seloger
leboncoin
le figaro
avendrealouer.fr

Ces biens pourraient également vous intéresser