Achat maison 190 m2 Fontenay-le-Comte (85200), 8 pièces
Demander des infos sur ce bien

Fontenay-Le-Comte (85200)

Maison 8 pièces - 190 m²

195 000 € *


Equipements de cette maison

  • 7 chambres 7 chambres
  • 1 salle d'eau 1 salle d'eau
  • 1 salle de bains 1 salle de bains
  • Terrasse de <br />88 m² Terrasse de
    88 m²
  • Cave de <br />6 m² Cave de
    6 m²

Présentation de cette maison

85200 FONTENAY LE COMTE – MAISON DE VILLE 190M² – TERRAIN 477 M² – TERRASSE DE 88M² – ATELIER – PUITS– ISOLATION TOITURE ET ARDOIRSES REFAITES -


Efficity, l'agence qui estime votre bien en ligne, vous propose cette maison mitoyenne de 190m² superficie habitable sur une parcelle de 477m².

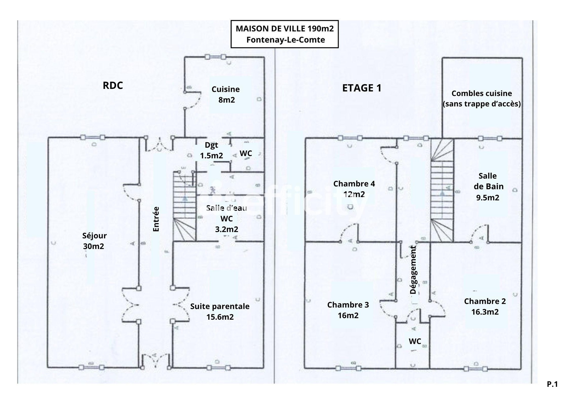
Cette maison élégante est composée d'une entrée avec placard, un spacieux séjour de 30m² donnant sur une terrasse en pierre de 88m², une cuisine de 8m², un dégagement, une chambre parentale de 15,5m…

85200 FONTENAY LE COMTE – MAISON DE VILLE 190M² – TERRAIN 477 M² – TERRASSE DE 88M² – ATELIER – PUITS– ISOLATION TOITURE ET ARDOIRSES REFAITES -


Efficity, l'agence qui estime votre bien en ligne, vous propose cette maison mitoyenne de 190m² superficie habitable sur une parcelle de 477m².

Cette maison élégante est composée d'une entrée avec placard, un spacieux séjour de 30m² donnant sur une terrasse en pierre de 88m², une cuisine de 8m², un dégagement, une chambre parentale de 15,5m² avec salle d'eau et wc, un cellier et un wc séparé.

Au 1er étage, un couloir desservant trois chambres (16,5m² 16m² et 12m²), une salle de bain de 9,5m² avec toilette et un wc séparé.

Au 2ème étage, un couloir proposant, une chambre de 19m², deux chambres de 16m², un grenier de 16m² et un wc séparé.

Ce bien est complété par un puits, une cave, un abri de jardin de 20m² et un atelier de 20m², une pompe à chaleur air/eau neuve et l'isolation toiture et ardoises de la toiture ont été refaites en 2023.


La taxe foncière est de 1200€ par an.

Pour plus d'informations, contactez Mikaël Porcino au 06 50 19 39 06 soit par mail.

En savoir plus sur ce logement

Les informations sur les risques auxquels ce bien est exposé sont disponibles sur le site Géorisques : http://georisques.gouv.fr

Référence: 196184
Mikael Porcino - EI - est Agent Commercial mandataire en immobilier, immatriculé au Registre Spécial des Agents Commerciaux du Tribunal de Commerce de Meaux sous le n°884307885. Siège social du mandant : effiCity, 48 avenue de Villiers - 75017 PARIS - Société par Actions Simplifiée, société au capital de 132 373,05 euros, immatriculée au RCS Paris 497 617 746 et titulaire de la Carte professionnelle CPI 7501 2015 000 002 025 - CCI Paris IDF - Caisse de Garantie : GALIAN Assurances 89 rue de la Boétie 75008 Paris

*Le prix de vente est 195 000 €. Le prix de vente est affiché hors frais de notaire, d'enregistrement et de publicité foncière. Les honoraires sont à la charge du vendeur. Voir les barèmes d'honoraire d'efficity.

Localisation du logement

Fontenay-Le-Comte (85200)

Caractéristiques du bien

Caractéristiques techniques

  • Type du chauffage : Individuel
  • Mode de diffusion du chauffage : Pompe à chaleur

Caractéristiques juridiques et financières

  • Taxe foncière de 1200 euros
  • Bien vendu soumis au statut de la copropriété : Non

Caractéristiques de la propriété

  • Maison construite en 2010
  • Toit en Zinc

BILAN ÉNERGÉTIQUE

A
B
C
D
E
F
G
Le bilan énergétique correspond à la note la plus faible entre la classe énergie et la classe climat.

CLASSE ÉNERGIE

A
B
C
121 kWh/m².an
D
E
F
G
Consommations énergétiques (en énergie primaire) pour le chauffage, la production d'eau chaude sanitaire et le refroidissement (Indice de mesure : kWhEP/m2.an).
Montant moyen estimé des dépenses annuelles d'énergie pour un usage standard, établi à partir des prix de l'énergie de l'année 2023 : entre 1410.0 et 1960.0 €.

CLASSE CLIMAT

A
4 kgCO2/m².an
B
C
D
E
F
G
Émissions de gaz à effet de serre (GES) pour le chauffage, la production d'eau chaude sanitaire et le refroidissement (Indice de mesure : kgeqCO2/m².an).
DPE réalisé après le 01 juillet 2021

Partager :

Retrouvez cette annonce sur ...

seloger
leboncoin
le figaro
avendrealouer.fr

Ces biens pourraient également vous intéresser