Achat maison 192 m2 Sorigny (37250), 7 pièces
Demander des infos sur ce bien

Sorigny (37250)

Maison 7 pièces - 192 m²

349 000 € *


Equipements de cette maison

  • 4 chambres 4 chambres
  • 2 salles d'eau 2 salles d'eau
  • Exposition Ouest Exposition Ouest
  • Vue exceptionnelle Vue exceptionnelle
  • Cheminée Cheminée
  • Jardin de <br />3 000 m² Jardin de
    3 000 m²
  • Terrasse de <br />37 m² Terrasse de
    37 m²
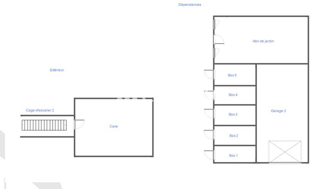
  • Cave de <br />12 m² Cave de
    12 m²
  • 1 garage 1 garage
  • 2 stationnements intérieurs 2 stationnements intérieurs

Présentation de cette maison

🏡 37250 SORIGNY / MONTBAZON – QUARTIER RÉSIDENTIEL
Maison de Charme – 192 m² – 7 pièces – 4 chambres – Grand terrain arboré et dépendances, garage

✨ Les points forts :

Superficie habitable de 192 m²
Terrain paysager et arboré de 3000 m², agrémenté d’arbres fruitiers (🍏 pommiers, 🍐 poiriers, 🌰 châtaigniers) et d'un jardin.
Nombreuses dépendances offrant de multiples possibilités environ 190 m².
Accès facile aux commerces, écoles et axes routiers principaux (A10 / Tours) à 800 mètres de Montbaz…

🏡 37250 SORIGNY / MONTBAZON – QUARTIER RÉSIDENTIEL
Maison de Charme – 192 m² – 7 pièces – 4 chambres – Grand terrain arboré et dépendances, garage

✨ Les points forts :

Superficie habitable de 192 m²
Terrain paysager et arboré de 3000 m², agrémenté d’arbres fruitiers (🍏 pommiers, 🍐 poiriers, 🌰 châtaigniers) et d'un jardin.
Nombreuses dépendances offrant de multiples possibilités environ 190 m².
Accès facile aux commerces, écoles et axes routiers principaux (A10 / Tours) à 800 mètres de Montbazon

🏠 Intérieur :

Cette maison familiale au charme ancien se compose d’un salon, d’une salle à manger, d’une cuisine séparée et équipée, de 4 chambres, d’une salle de bain récemment rénovée et de WC indépendants.
Un garage et un atelier complètent l’ensemble et ouvrent la voie à de nombreux aménagements selon vos projets.

👉 Un rafraîchissement est à prévoir, offrant la possibilité de la remettre à votre goût.

🌿 Extérieur :

Belle terrasse de 37 m² exposée ouest ☀️
Jardin paysager sans vis-à-vis, idéal pour profiter de la tranquillité
Espaces multiples pour stationnement et bricolage
Terrain partiellement constructible, sous conditions, notamment pour une activité professionnelle.

🪛 Point technique:

Dpe C réalisé en Aout 2025
Mur en Pierre de Taille de 55 cm
Chauffage au sol en rez de chaussée: pompe à chaleur eau/eau, électricité à l'étage
Raccordement au Tout à l'égout datant de 2 ans
Assainissement réalisé le 19/09/2025
Un puits se trouve sur le terrain.

💫 Alliant charme de l’ancien, beaux volumes et cadre verdoyant, cette maison séduira les amateurs de tranquillité et d’authenticité.

📞 Contactez-moi dès aujourd’hui pour plus d’informations ou pour organiser une visite !

👉 Cyndelle Allain – Mandataire efficity
📲 06 72 13 15 25
📩 [email protected]

En savoir plus sur ce logement

Les informations sur les risques auxquels ce bien est exposé sont disponibles sur le site Géorisques : http://georisques.gouv.fr

Référence: 211010
Cyndelle Allain - EI - est Agent Commercial mandataire en immobilier, immatriculé au Registre Spécial des Agents Commerciaux du Tribunal de Commerce de Tours sous le n°984325076. Siège social du mandant : effiCity, 48 avenue de Villiers - 75017 PARIS - Société par Actions Simplifiée, société au capital de 132 373,05 euros, immatriculée au RCS Paris 497 617 746 et titulaire de la Carte professionnelle CPI 7501 2015 000 002 025 - CCI Paris IDF - Caisse de Garantie : GALIAN Assurances 89 rue de la Boétie 75008 Paris

*Le prix de vente est 349 000 €. Le prix de vente est affiché hors frais de notaire, d'enregistrement et de publicité foncière. Les honoraires sont à la charge du vendeur. Voir les barèmes d'honoraire d'efficity.

Localisation du logement

Sorigny (37250)

Caractéristiques du bien

Caractéristiques techniques

  • Type du chauffage : Individuel
  • Mode de diffusion du chauffage : Au sol
  • Énergie du chauffage : Electricité
  • Origine de l'eau : Individuel
  • Type d'eau chaude : Chaudière
  • Mode de production d'eau chaude : Electricité

Caractéristiques juridiques et financières

  • Taxe foncière de 450 euros
  • Bien vendu soumis au statut de la copropriété : Non

Caractéristiques de la propriété

  • Maison construite en 1850
  • Façade en Crépi
  • Toit en Ardoise

BILAN ÉNERGÉTIQUE

A
B
C
D
E
F
G
Le bilan énergétique correspond à la note la plus faible entre la classe énergie et la classe climat.

CLASSE ÉNERGIE

A
B
C
136 kWh/m².an
D
E
F
G
Consommations énergétiques (en énergie primaire) pour le chauffage, la production d'eau chaude sanitaire et le refroidissement (Indice de mesure : kWhEP/m2.an).
Montant moyen estimé des dépenses annuelles d'énergie pour un usage standard, établi à partir des prix de l'énergie de l'année 2023 : entre 1990.0 et 2750.0 €.

CLASSE CLIMAT

A
B
7 kgCO2/m².an
C
D
E
F
G
Émissions de gaz à effet de serre (GES) pour le chauffage, la production d'eau chaude sanitaire et le refroidissement (Indice de mesure : kgeqCO2/m².an).
DPE réalisé après le 01 juillet 2021

Partager :

Retrouvez cette annonce sur ...

seloger
leboncoin
le figaro
avendrealouer.fr

Ces biens pourraient également vous intéresser