Achat maison 79 m2 La Ciotat (13600), 4 pièces
Demander des infos sur ce bien

La Ciotat (13600)

Maison 4 pièces - 79 m²

473 000 € *


Equipements de cette maison

  • 3 chambres 3 chambres
  • 2 salles d'eau 2 salles d'eau
  • Exposition Est Exposition Est
  • Vue exceptionnelle Vue exceptionnelle
  • Jardin de <br />30 m² Jardin de
    30 m²
  • Sous-sol de <br />50 m² Sous-sol de
    50 m²
  • 1 garage 1 garage

Présentation de cette maison

13600 - LA CIOTAT - SUR LES HAUTEUR DE NOTRE DAME DE LA GARDE - MAISON AVEC SOUS-SOL SPACIEUX DE 40M² - 4 PIÈCES - 3 CHAMBRES - 79m2 - GARAGE - PETITE VUE MER - CALME

efficity, l’agence qui estime votre bien en ligne, vous propose cette charmante maison située à La Ciotat, dans le quartier recherché de Notre Dame de la Garde. Cette maison de 4 pièces et 3 chambres offre un cadre de vie paisible, CALME et AGREABLE en bordure du PARC DES CALANQUES.
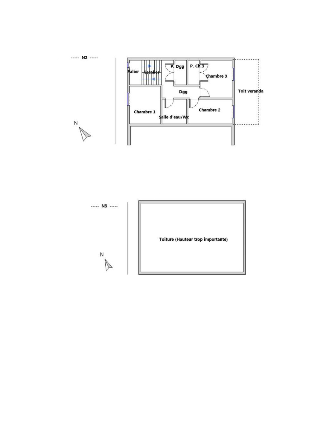
Le rez-de-chaussée se compose d'un salon sa…

13600 - LA CIOTAT - SUR LES HAUTEUR DE NOTRE DAME DE LA GARDE - MAISON AVEC SOUS-SOL SPACIEUX DE 40M² - 4 PIÈCES - 3 CHAMBRES - 79m2 - GARAGE - PETITE VUE MER - CALME

efficity, l’agence qui estime votre bien en ligne, vous propose cette charmante maison située à La Ciotat, dans le quartier recherché de Notre Dame de la Garde. Cette maison de 4 pièces et 3 chambres offre un cadre de vie paisible, CALME et AGREABLE en bordure du PARC DES CALANQUES.
Le rez-de-chaussée se compose d'un salon salle à manger donnant sur une TERRASSE AVEC BARBECUE de 12m² environ vue dégagée sur les collines environnantes et le parc des calanques, d'une cuisine équipée et séparée pouvant être ouverte sur la pièce de vie donnant sur une autre terrasse couverte de 10m² environ, un wc indépendant avec lave main ainsi qu'une salle de douche servant de buanderie. A l'étage, vous trouverez trois belles chambres dont 2 avec VUE MER, offrant confort et intimité, ainsi que d'une salle de bain fonctionnelle et un wc. Vous pourrez également profiter d'un PETIT JARDIN ARBORE, idéal pour des moments de détente en plein air.

Pour compléter ce bien elle dispose d'un GARAGE de 12m² et d'un grand sous-sol de 40m² environ, offrant de nombreuses possibilités d'aménagement selon vos besoins. La maison, construite entre 1970, bénéficie de plusieurs expositions, assurant une luminosité optimale tout au long de la journée.

Le chauffage et l'eau et par chaudière à gaz individuel.

Cette maison est le lieu idéal pour profiter pleinement de la vie en bord de mer, tout en étant proche des commodités du quotidien. Ne manquez pas l'opportunité de visiter ce bien d'exception à La Ciotat. Photos meublés virtuellement

Contactez-moi dès maintenant pour convenir d'une visite et découvrir par vous-même tous les atouts de cette maison. Je suis Jessica Impagnatiello, votre conseillère immobilière EffiCity, vous pouvez me joindre au 06 24 05 08 81 ou par mail à [email protected].

En savoir plus sur ce logement

Les informations sur les risques auxquels ce bien est exposé sont disponibles sur le site Géorisques : http://georisques.gouv.fr

Référence: 190783
Elodie Ventre - EI - est Agent Commercial mandataire en immobilier, immatriculé au Registre Spécial des Agents Commerciaux du Tribunal de Commerce de Marseille sous le n°529669590. Siège social du mandant : effiCity, 48 avenue de Villiers - 75017 PARIS - Société par Actions Simplifiée, société au capital de 132 373,05 euros, immatriculée au RCS Paris 497 617 746 et titulaire de la Carte professionnelle CPI 7501 2015 000 002 025 - CCI Paris IDF - Caisse de Garantie : GALIAN Assurances 89 rue de la Boétie 75008 Paris

*Le prix de vente est 473 000 €. Le prix de vente est affiché hors frais de notaire, d'enregistrement et de publicité foncière. Les honoraires sont à la charge du vendeur. Voir les barèmes d'honoraire d'efficity.

Localisation du logement

La Ciotat (13600)

Caractéristiques du bien

Caractéristiques techniques

  • Type du chauffage : Individuel
  • Mode de diffusion du chauffage : Radiateur
  • Énergie du chauffage : Gaz
  • Origine de l'eau : Individuel
  • Type d'eau chaude : Chaudière
  • Mode de production d'eau chaude : Gaz

Caractéristiques juridiques et financières

  • Taxe foncière de 900 euros
  • Bien vendu soumis au statut de la copropriété : Oui
  • 200 lots dans la copropriété
  • Montant annuel moyen des charges de la copropriété : 1340 euros
  • Procédure en cours : Non

Caractéristiques de la propriété

  • Maison construite en 1970

BILAN ÉNERGÉTIQUE

A
B
C
D
E
F
G
Le bilan énergétique correspond à la note la plus faible entre la classe énergie et la classe climat.

CLASSE ÉNERGIE

A
B
C
D
248 kWh/m².an
E
F
G
Consommations énergétiques (en énergie primaire) pour le chauffage, la production d'eau chaude sanitaire et le refroidissement (Indice de mesure : kWhEP/m2.an).
Montant moyen estimé des dépenses annuelles d'énergie pour un usage standard, établi à partir des prix de l'énergie de l'année 2024 : entre 800.0 et 1200.0 €.

CLASSE CLIMAT

A
B
C
D
E
54 kgCO2/m².an
F
G
Émissions de gaz à effet de serre (GES) pour le chauffage, la production d'eau chaude sanitaire et le refroidissement (Indice de mesure : kgeqCO2/m².an).
DPE réalisé après le 01 juillet 2021

Partager :

Retrouvez cette annonce sur ...

seloger
leboncoin
le figaro
avendrealouer.fr

Ces biens pourraient également vous intéresser