Achat maison 82 m2 Roubaix (59100), 3 pièces
Demander des infos sur ce bien

Roubaix (59100)

Maison 3 pièces - 82 m²

130 000 € *


Equipements de cette maison

  • 2 chambres 2 chambres
  • 1 salle de bains 1 salle de bains
  • Exposition Nord Exposition Nord
  • Terrasse de <br />5 m² Terrasse de
    5 m²

Présentation de cette maison

59100 - ROUBAIX – MAISON 1930 – 82 m² – 2 CHAMBRES + POTENTIEL 3ᵉ – COUR – RUE CALME – QUARTIER PLACE DU TRAVAIL

Efficity, l’agence qui estime votre bien en ligne et Simon MENART vous proposent cette ravissante maison située en plein cœur de Roubaix.

Découvrez cette charmante maison 1930 mitoyenne des deux côtés, idéalement située dans le quartier recherché de la Place du Travail, à Roubaix.
Un secteur apprécié pour son calme, son sens unique sécurisé, et sa proximité immédiate avec Vic…

59100 - ROUBAIX – MAISON 1930 – 82 m² – 2 CHAMBRES + POTENTIEL 3ᵉ – COUR – RUE CALME – QUARTIER PLACE DU TRAVAIL

Efficity, l’agence qui estime votre bien en ligne et Simon MENART vous proposent cette ravissante maison située en plein cœur de Roubaix.

Découvrez cette charmante maison 1930 mitoyenne des deux côtés, idéalement située dans le quartier recherché de la Place du Travail, à Roubaix.
Un secteur apprécié pour son calme, son sens unique sécurisé, et sa proximité immédiate avec Victor Provo, les écoles, les commerces, les transports et l’EDHEC.

✨ Un intérieur chaleureux et fonctionnel

D’une surface de 82 m², cette maison offre une atmosphère agréable avec :

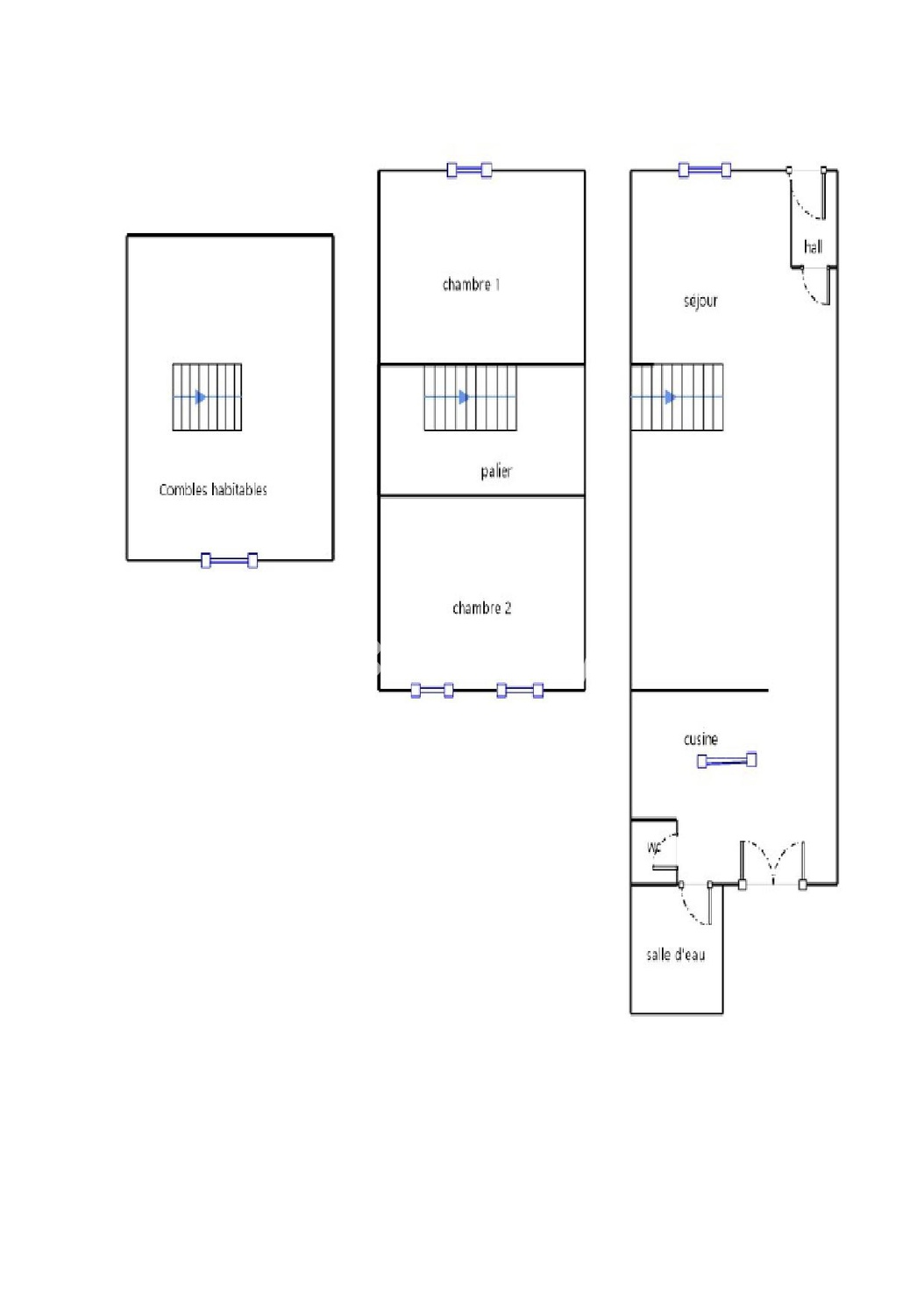
Au rez-de-chaussée :

Un séjour lumineux de 29m2

Une cuisine séparée de 12.50m2

Un petit cellier très pratique pour les machines,

Une salle de bain rénovée avec douche à l’italienne (2017) de 4m2,

Au 1er étage :

2 chambres au premier étage de 12m2 et 11.50m2

Au 2ème étage :

Un grenier partiellement aménagé offrant un beau potentiel d’évolution permettant facilement la création d’une 3ᵉ chambre ou d’un bureau.

La maison a su préserver son charme authentique des années 1930, avec une décoration soignée et une ambiance chaleureuse.

🌿 Extérieur

Cour de 5 m², exposée Nord-Est, idéale pour profiter d’un petit espace extérieur au calme.

🚗 Stationnement

Stationnement facile dans la rue,

🔧 Travaux importants réalisés

Une maison entretenue avec soin :

Fenêtres + porte d’entrée (2012),

Toiture révisée (2014),

Douche à l’italienne (2017),

Chaudière (2018),

Tout-à-l’égout conforme.

Aucun gros travaux à prévoir : vous posez vos meubles.

🛍️ Commerces à proximité immédiate

Carrefour Express – 169 m

Euro Cave Novas – 197 m

Le Parvis – 294 m

Carrefour Contact – 404 m

Un Grain dans le Bocal – 417 m

🎓 Écoles proches

Lycée Louis Loucheur – 223 m

École élémentaire Léon Jouhaux – 233 m

École maternelle Édouard Vaillant – 242 m

École élémentaire Édouard Vaillant – 265 m

École privée Saint-Jean-Baptiste – 351 m

🩺 Santé

Dentiste – 202 m

Pharmacie Nicolas Delory – 294 m

Hôpital Victor Provo – 424 m

Ostéopathe – 450 m

🎾 Loisirs

Stade Joseph Vandame – 224 m

Parc de la Potennerie – 497 m

Piscine Danielle et Fantine Lesaffre – 591 m

🚊 Transports & mobilité

Un secteur très bien desservi :

Bus : Place du Travail – 89 m

Tramway : Hôpital Victor Provo – 925 m

Métro : Roubaix - Charles de Gaulle – 1,3 km

Gare : Croix – L’Allumette – 2,3 km

💶 Données financières

Prix : 143 000 € FAI (charge vendeur)

Taxe foncière : 400 €

Gaz + Électricité : environ 75 €/mois

Chaudière assurant chauffage et eau chaude

Profitez d'un cadre de vie idéal pour les primo accédant ou familles, à proximité des écoles, commerces et transports.


Contactez-moi dès maintenant pour organiser une visite !

Contact:
Simon MENART
Tél : 06.28.203.652
Mail:[email protected]

En savoir plus sur ce logement

Les informations sur les risques auxquels ce bien est exposé sont disponibles sur le site Géorisques : http://georisques.gouv.fr

Référence: 199123
Simon Ménart - EI - est Agent Commercial mandataire en immobilier, immatriculé au Registre Spécial des Agents Commerciaux du Tribunal de Commerce de Lille sous le n°909199788. Siège social du mandant : effiCity, 48 avenue de Villiers - 75017 PARIS - Société par Actions Simplifiée, société au capital de 132 373,05 euros, immatriculée au RCS Paris 497 617 746 et titulaire de la Carte professionnelle CPI 7501 2015 000 002 025 - CCI Paris IDF - Caisse de Garantie : GALIAN Assurances 89 rue de la Boétie 75008 Paris

*Le prix de vente est 130 000 €. Le prix de vente est affiché hors frais de notaire, d'enregistrement et de publicité foncière. Les honoraires sont à la charge du vendeur. Voir les barèmes d'honoraire d'efficity.

Localisation du logement

Roubaix (59100)

Caractéristiques du bien

Caractéristiques techniques

  • Type du chauffage : Individuel
  • Mode de diffusion du chauffage : Radiateur
  • Énergie du chauffage : Gaz
  • Origine de l'eau : Individuel
  • Type d'eau chaude : Chaudière
  • Mode de production d'eau chaude : Gaz

Caractéristiques juridiques et financières

  • Taxe foncière de 400 euros
  • Charges diverses annuelles : 900 euros
  • Bien vendu soumis au statut de la copropriété : Non

Caractéristiques de la propriété

  • Maison construite en 1930
  • Façade en Pierre
  • Toit en Tuile artisanale

BILAN ÉNERGÉTIQUE

A
B
C
D
E
F
G
Le bilan énergétique correspond à la note la plus faible entre la classe énergie et la classe climat.

CLASSE ÉNERGIE

A
B
C
D
195 kWh/m².an
E
F
G
Consommations énergétiques (en énergie primaire) pour le chauffage, la production d'eau chaude sanitaire et le refroidissement (Indice de mesure : kWhEP/m2.an).
Montant moyen estimé des dépenses annuelles d'énergie pour un usage standard, établi à partir des prix de l'énergie de l'année 2024 : entre 1470.0 et 2030.0 €.

CLASSE CLIMAT

A
B
C
D
42 kgCO2/m².an
E
F
G
Émissions de gaz à effet de serre (GES) pour le chauffage, la production d'eau chaude sanitaire et le refroidissement (Indice de mesure : kgeqCO2/m².an).
DPE réalisé après le 01 juillet 2021

Partager :

Retrouvez cette annonce sur ...

seloger
leboncoin
le figaro
avendrealouer.fr

Ces biens pourraient également vous intéresser