Achat maison 93 m2 Montigny-Lencoup (77520), 5 pièces
Demander des infos sur ce bien

Montigny-Lencoup (77520)

Maison 5 pièces - 94 m²

120 000 € *


Equipements de cette maison

  • 2 chambres 2 chambres
  • 1 salle de bains 1 salle de bains
  • Exposition Sud Exposition Sud
  • Cheminée Cheminée
  • Jardin de <br />919 m² Jardin de
    919 m²
  • Terrasse de <br />15 m² Terrasse de
    15 m²
  • 1 garage 1 garage
  • 1 stationnement extérieur 1 stationnement extérieur

Présentation de cette maison

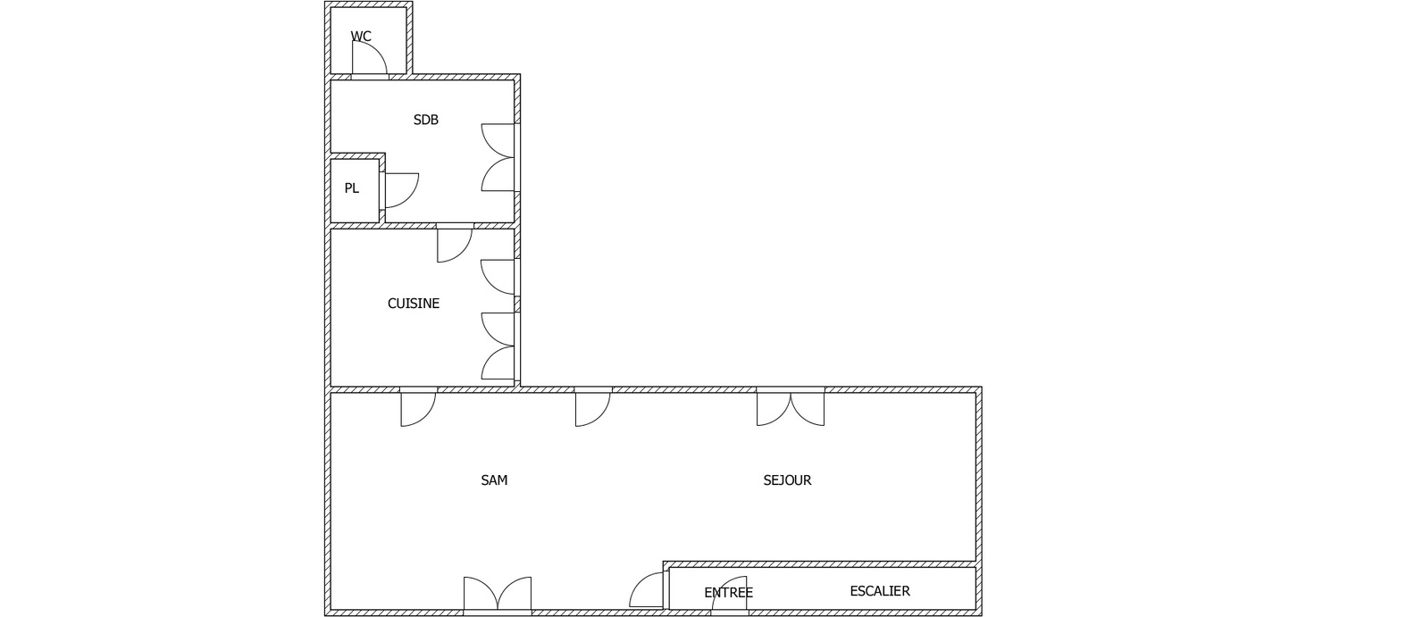
77520 - MONTIGNY LENCOUP – CHARMANTE MAISON DE VILLAGE – MAISON 5 PIÈCES, 2/3 CHAMBRES DE 93 M2 (89.67 M2 carrez) - effiCity, l'agence qui estime votre bien en ligne vous propose, cette jolie maison sur un TERRAIN clos et sans vis-à-vis de 919 m². En RDC, elle se compose d’une entrée, d’un séjour/SAM avec CHEMINEE, d’une cuisine, d’une SDB, d’un wc séparé. Au 1er étage, ce bien dispose de 2 CHAMBRES et d’un bureau. Un garage de plus de 22 m2 avec grenier, un abri de jardin, un puit, un barbecu…

77520 - MONTIGNY LENCOUP – CHARMANTE MAISON DE VILLAGE – MAISON 5 PIÈCES, 2/3 CHAMBRES DE 93 M2 (89.67 M2 carrez) - effiCity, l'agence qui estime votre bien en ligne vous propose, cette jolie maison sur un TERRAIN clos et sans vis-à-vis de 919 m². En RDC, elle se compose d’une entrée, d’un séjour/SAM avec CHEMINEE, d’une cuisine, d’une SDB, d’un wc séparé. Au 1er étage, ce bien dispose de 2 CHAMBRES et d’un bureau. Un garage de plus de 22 m2 avec grenier, un abri de jardin, un puit, un barbecue en dur et un chenil complètent ce bien. Située à une heure de Paris par l’A5 sortie à 10 kms, proche de Fontainebleau, de Moret sur Loing, de Provins. A PROXIMITE gare SNCF (Paris en 47 mn), commerces, écoles dans le village et secondaire à 10 mn (ramassage scolaire). A noter, idéal première acquisition. A voir !

En savoir plus sur ce logement

Les informations sur les risques auxquels ce bien est exposé sont disponibles sur le site Géorisques : http://georisques.gouv.fr

Référence: 194858
Arnaud des Diguères - EI - est Agent Commercial mandataire en immobilier, immatriculé au Registre Spécial des Agents Commerciaux du Tribunal de Commerce de Melun sous le n°818554768. Siège social du mandant : effiCity, 48 avenue de Villiers - 75017 PARIS - Société par Actions Simplifiée, société au capital de 132 373,05 euros, immatriculée au RCS Paris 497 617 746 et titulaire de la Carte professionnelle CPI 7501 2015 000 002 025 - CCI Paris IDF - Caisse de Garantie : GALIAN Assurances 89 rue de la Boétie 75008 Paris

*Le prix de vente est 120 000 €. Le prix de vente est affiché hors frais de notaire, d'enregistrement et de publicité foncière. Les honoraires sont à la charge du vendeur. Voir les barèmes d'honoraire d'efficity.

Localisation du logement

Montigny-Lencoup (77520)

Caractéristiques du bien

Caractéristiques techniques

  • Type du chauffage : Individuel
  • Mode de diffusion du chauffage : Radiateur
  • Énergie du chauffage : Gaz
  • Origine de l'eau : Individuel
  • Type d'eau chaude : Chaudière
  • Mode de production d'eau chaude : Gaz

Caractéristiques juridiques et financières

  • Taxe foncière de 867 euros
  • Bien vendu soumis au statut de la copropriété : Non

Caractéristiques de la propriété

  • Façade en Crépi
  • Toit en Tuile à emboitement

BILAN ÉNERGÉTIQUE

A
B
C
D
E
F
G
Le bilan énergétique correspond à la note la plus faible entre la classe énergie et la classe climat.

CLASSE ÉNERGIE

A
B
C
D
E
F
G
500 kWh/m².an
Consommations énergétiques (en énergie primaire) pour le chauffage, la production d'eau chaude sanitaire et le refroidissement (Indice de mesure : kWhEP/m2.an).
Montant moyen estimé des dépenses annuelles d'énergie pour un usage standard, établi à partir des prix de l'énergie de l'année 2023 : entre 3160.0 et 4320.0 €.
Logement à consommation énergétique excessive. La loi impose que le niveau de performance énergétique (DPE) du bien immobilier, actuellement de classe G, soit compris, à compter du 1er janvier 2028, entre la classe A et la classe E.

CLASSE CLIMAT

A
B
C
D
E
F
71 kgCO2/m².an
G
Émissions de gaz à effet de serre (GES) pour le chauffage, la production d'eau chaude sanitaire et le refroidissement (Indice de mesure : kgeqCO2/m².an).
DPE réalisé après le 01 juillet 2021

Partager :

Retrouvez cette annonce sur ...

seloger
leboncoin
le figaro
avendrealouer.fr

Ces biens pourraient également vous intéresser