Achat terrain 1740 m2 Annonay (07100)
Demander des infos sur ce bien

Annonay (07100)

Terrain - 1740 m² Exclusivité efficity

160 000 € *

Exclusivité efficity
First photo

Présentation de ce terrain

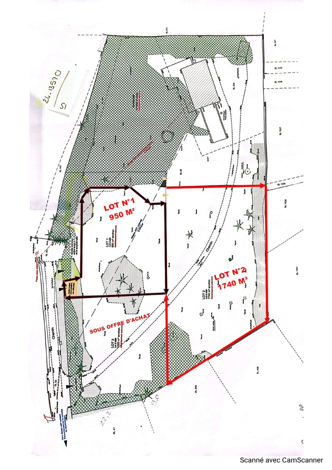
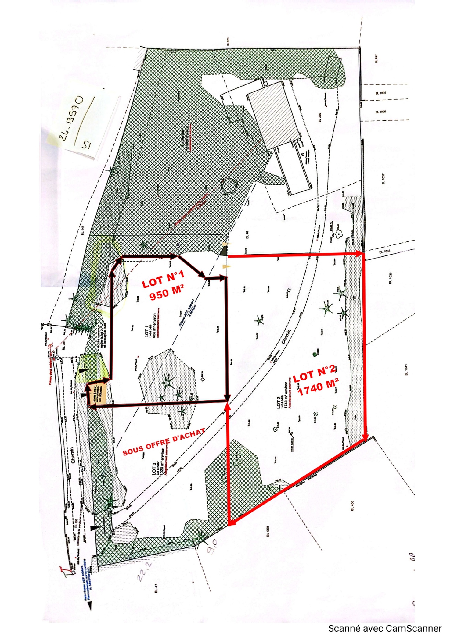
07100 - ANNONAY - MONTMIANDON - TERRAIN - SURFACE: 1740.0 M² - OPPORTUNITÉ RARE POUR AMOUREUX PROCHE DE LA VILLE

efficity, l’agence qui estime votre bien en ligne, vous propose

À Annonay, sur la Corniche de Montmiandon, découvrez ce terrain exceptionnel d'une superficie de 1740.0 m²,

Ce terrain, situé dans un quartier calme et résidentiel, offre de multiples possibilités d'aménagement pour la construction d'un projet immobilier sur mesure. Sa surface généreuse permet de laisser libre …

07100 - ANNONAY - MONTMIANDON - TERRAIN - SURFACE: 1740.0 M² - OPPORTUNITÉ RARE POUR AMOUREUX PROCHE DE LA VILLE

efficity, l’agence qui estime votre bien en ligne, vous propose

À Annonay, sur la Corniche de Montmiandon, découvrez ce terrain exceptionnel d'une superficie de 1740.0 m²,

Ce terrain, situé dans un quartier calme et résidentiel, offre de multiples possibilités d'aménagement pour la construction d'un projet immobilier sur mesure. Sa surface généreuse permet de laisser libre cours à toutes les idées de construction,

La localisation privilégiée de ce terrain sur la Corniche de Montmiandon offre un cadre de vie paisible et verdoyant, tout en étant à proximité des commodités et des infrastructures nécessaires au quotidien. L'environnement naturel et préservé ajoute une dimension d'exception à ce bien, idéal pour créer un projet immobilier unique et valorisant.
TERRAIN VIABILISE ASSAINISSEMENT INDEPENDANT A PREVOIR


Ne manquez pas cette occasion unique d'investir dans un terrain offrant de nombreuses possibilités d'aménagement et un cadre de vie privilégié. Contactez-moi dès maintenant pour organiser une visite et découvrir tout le potentiel de ce terrain d'exception.

En savoir plus sur ce logement

Les informations sur les risques auxquels ce bien est exposé sont disponibles sur le site Géorisques : http://georisques.gouv.fr

Référence: 204295
Denis Dalverny - EI - est Agent Commercial mandataire en immobilier, immatriculé au Registre Spécial des Agents Commerciaux du Tribunal de Commerce de Aubenas sous le n°429189871. Siège social du mandant : effiCity, 48 avenue de Villiers - 75017 PARIS - Société par Actions Simplifiée, société au capital de 132 373,05 euros, immatriculée au RCS Paris 497 617 746 et titulaire de la Carte professionnelle CPI 7501 2015 000 002 025 - CCI Paris IDF - Caisse de Garantie : GALIAN Assurances 89 rue de la Boétie 75008 Paris

*Le prix de vente est 160 000 €. Le prix de vente est affiché hors frais de notaire, d'enregistrement et de publicité foncière. Les honoraires sont à la charge du vendeur. Voir les barèmes d'honoraire d'efficity.

Localisation du logement

Annonay (07100)

Caractéristiques du bien

Caractéristiques juridiques et financières

  • Bien vendu soumis au statut de la copropriété : Non

BILAN ÉNERGÉTIQUE

Bien non soumis au DPE

Partager :

Retrouvez cette annonce sur ...

seloger
leboncoin
le figaro
avendrealouer.fr

Ces biens pourraient également vous intéresser