Achat terrain 400 m2 Olonzac (34210)
Demander des infos sur ce bien

Olonzac (34210)

Terrain - 400 m²

79 000 € *


Présentation de ce terrain

🏡✨ Efficity, l'agence qui estime votre bien en ligne, et Steven Mascolo vous proposent :

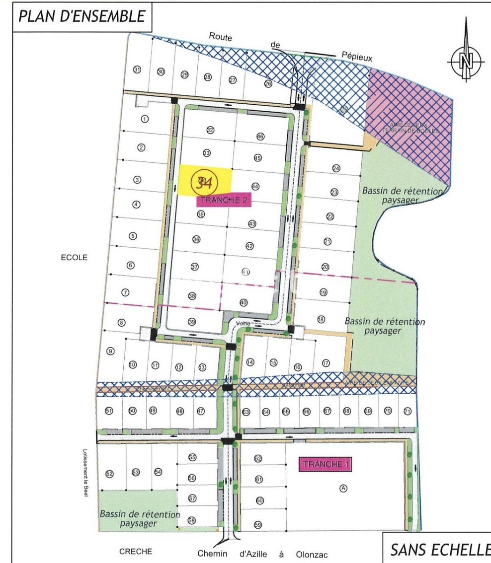
📍 Sur la commune de Olonzac, découvrez ce terrain constructible et viabilisé de 400 m².
🌿 Idéalement situé, il offre un cadre agréable pour concrétiser votre projet de vie.
🏗️ Étude personnalisée d’un projet de construction possible avec notre partenaire constructeur, pour vous accompagner de A à Z dans la réalisation de votre future maison.
💡 Une belle opportunité à saisir pour bâtir la maison qui vous re…

🏡✨ Efficity, l'agence qui estime votre bien en ligne, et Steven Mascolo vous proposent :

📍 Sur la commune de Olonzac, découvrez ce terrain constructible et viabilisé de 400 m².
🌿 Idéalement situé, il offre un cadre agréable pour concrétiser votre projet de vie.
🏗️ Étude personnalisée d’un projet de construction possible avec notre partenaire constructeur, pour vous accompagner de A à Z dans la réalisation de votre future maison.
💡 Une belle opportunité à saisir pour bâtir la maison qui vous ressemble !

📞 Contactez-moi pour plus d’informations ou pour organiser une visite.

En savoir plus sur ce logement

Les informations sur les risques auxquels ce bien est exposé sont disponibles sur le site Géorisques : http://georisques.gouv.fr

Référence: 207803
Steven Mascolo - EI - est Agent Commercial mandataire en immobilier, immatriculé au Registre Spécial des Agents Commerciaux du Tribunal de Commerce de Béziers sous le n°813351285. Siège social du mandant : effiCity, 48 avenue de Villiers - 75017 PARIS - Société par Actions Simplifiée, société au capital de 132 373,05 euros, immatriculée au RCS Paris 497 617 746 et titulaire de la Carte professionnelle CPI 7501 2015 000 002 025 - CCI Paris IDF - Caisse de Garantie : GALIAN Assurances 89 rue de la Boétie 75008 Paris

*Le prix de vente est 79 000 € (Honoraire Agence Inclus correspondant à 5,33% TTC du prix de vente). Le prix de vente est affiché hors frais de notaire, d'enregistrement et de publicité foncière. Les honoraires sont à la charge de l'acquéreur et sont déjà inclus dans le prix de vente affiché. Voici le prix de vente hors honoraires : 75 000 €. Voir les barèmes d'honoraire d'efficity.

Localisation du logement

Olonzac (34210)

Caractéristiques du bien

Caractéristiques juridiques et financières

  • Bien vendu soumis au statut de la copropriĂ©tĂ© : Non

BILAN ÉNERGÉTIQUE

Bien non soumis au DPE

Partager :

Retrouvez cette annonce sur ...

seloger
leboncoin
le figaro
avendrealouer.fr

Ces biens pourraient également vous intéresser